Maison neuve à
Alignan-du-Vent
(34290) Référence :
AB2375610_5
Prix du projet : Maison avec Terrain
prix 257 000 €
- 5 pièces
- 4 chambres
- Surface maison 95 m2
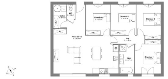
PROJET DE CONSTRUCTION - Maison F5 (95 m²) à Alignan-du-Vent
EMPLACEMENT PRIVILÉGIÉ - MAISON 5 PIÈCES
À 22 km de la côte méditerranéenne et à 16 km de Béziers, Maisons de Manon Béziers vous propose cette maison de 5 pièces de plain-pied de 95 m² bénéficiant d'un emplacement privilégié dans Alignan-du-Vent (34290).
Son intérieur compte quatre chambres, une cuisine, un cellier et une salle de bains.
(Carrelage inclus dans toutes les pièces / Raccordements inclus / Gainable compris).
Le terrain du bien est de 370 m².
Cette maison se situe dans un quartier prisé. Une école primaire y est implantée. Côté transports, on trouve la gare Magalas à moins de 10 minutes en voiture. L'autoroute A75 est accessible à 6 km. Il y a une bibliothèque, un tennis, un bassin de natation, trois boulangeries, un bureau de poste et deux boucheries-charcuteries à proximité du logement.
Elle est proposée à l'achat pour 257 000 €.
Pour plus d'information contacter (Anthony BALLESTER : 06-27-21-51-55) Maisons de Manon Béziers pour échanger sur votre projet et réaliser une étude gratuite. (Plan personnalisable). Tous nos ouvrages sont réalisés sur-mesure en fonction de vos attentes et de nos échanges avec vous ainsi que dans le respect de la règlementation RE 2020. Ce projet comporte les garanties suivantes: Contrat de construction CCMI. Dommage/Ouvrage. RC Garantie décennale. Parfaite achèvement. Etude de sol G2. Prix et délais convenu. Garantie de livraison. Garantie financière Pour votre tranquillité nous nous occupons de toutes les formalités administratives.
Mentions légales
Terrain proposé par un partenaire foncier selon disponibilités et autorisation de publicité au prix de 90 000 €. Hors droit d'enregistrement et frais de notaire. Terrain + Maison proposés au prix de 257 000 € (Hors branchements et raccordements, papiers peints, peintures, revêtement de sol dans les chambres. Tarif modifiable sans préavis). Etiquette énergie : A. Différents modèles disponibles pour ce terrain. Assurances et garanties du constructeur (RC professionnelle, décennale, dommage ouvrage, garantie de remboursement de l'acompte, livraison à prix et délai convenu) : https://www.maisons-de-manon.fr/informations-legales/. HEXAOM Services est enregistré auprès de l'ORIAS en tant que Courtier en financement, Niveau 1, sous le numéro 14001345.Agence Maisons de Manon de Béziers (34500)
- Téléphone :
- 04 67 00 87 30
- Adressse :
- 66, avenue Pierre Verdier
34500 Béziers, France