Maison neuve à
Barjols
(83670) Référence :
FI2362413_1
Prix du projet : Maison avec Terrain
prix 290 000 €
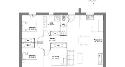
- 3 pièces
- 3 chambres
- Surface maison 77 m2
Projet de construction à Barjols, à 20 min de saint maximin
À vendre : localisée à 49 km de la mer Méditerranée, nous sommes ravis de vous présenter cette maison de 4 pièces de plain-pied de 77 m² à Barjols (83670).
Conçue de plain-pied, elle se divise en trois chambres, une cuisine et une salle de bains. Cette maison est neuve.
Le terrain du bien s'étend sur 700 m².
Il y a l'École Maternelle Pierre Perret, le Collège Joseph d'Arbaud et l'École Primaire Aristide Briand à moins de 10 minutes à pied. Il y a un accès à l'autoroute A8 à 16 km. On trouve un tennis, un bassin de natation, des commerces, trois boulangeries, un supermarché, une boucherie-charcuterie et un bureau de poste à proximité.
Contactez Florence INGARGIOLA au O616275393 pour une étude personnalisée de votre projet à partir de 305000 euros hors frais de notaire et taxes. Maisons de Manon Brignoles vous accompagne à toutes les étapes de votre projet.
Mentions légales
Terrain proposé par un partenaire foncier selon disponibilités et autorisation de publicité au prix de 115 000 €. Hors droit d'enregistrement et frais de notaire. Terrain + Maison proposés au prix de 175 000 € (Hors branchements et raccordements, papiers peints, peintures, revêtement de sol dans les chambres. Tarif modifiable sans préavis). Etiquette énergie : A. Différents modèles disponibles pour ce terrain. Assurances et garanties du constructeur (RC professionnelle, décennale, dommage ouvrage, garantie de remboursement de l'acompte, livraison à prix et délai convenu) : https://www.maisons-de-manon.fr/informations-legales/. HEXAOM Services est enregistré auprès de l'ORIAS en tant que Courtier en financement, Niveau 1, sous le numéro 14001345.Agence Maisons de Manon de Brignoles (83170)
- Téléphone :
- 04 94 37 50 39
- Adressse :
- Chemin du Beouvésé
83170 Brignoles, France
