Maison neuve à
Barjols
(83670) Référence :
FI2422243_2
Prix du projet : Maison avec Terrain
prix 299 000 €
- 3 pièces
- 2 chambres
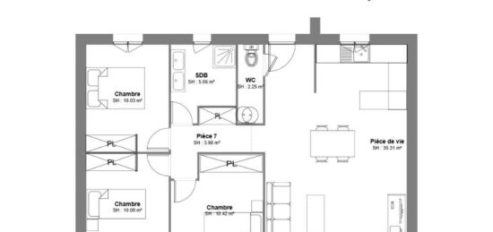
- Surface maison 80 m2
Projet de construction à Barjols: à 20 min de Brignoles, 45 min de Aix en provence et Marseille,
Maisons de Manon Brignoles vous présente cette maison de 3 pièces de plain-pied de 80 m² et de 1 390 m² de terrain à Barjols (83670). Son intérieur comporte deux chambres, une cuisine et une salle de bains.
Proposition de projet entièrement personnalisable
L'École Maternelle Pierre Perret, le Collège Joseph d'Arbaud et l'École Primaire Aristide Briand sont implantés à moins de 10 minutes à pied. L'autoroute A8 est accessible à 16 km. Il y a un tennis, un bassin de natation, trois boulangeries, des commerces, deux supermarchés, une boucherie-charcuterie et une épicerie à proximité.
Contactez Florence INGARGIOLA au O616275393 pour une étude personnalisée de votre projet à partir de 299000 euros hors frais de notaire, taxes et aménagements. Maisons de Manon Brignoles vous accompagne à toutes les étapes de votre projet. Maisons de Manon Brignoles vous accompagne dans toutes vos démarches et dans tous vos projets immobiliers.
Mentions légales
Terrain proposé par un partenaire foncier selon disponibilités et autorisation de publicité au prix de 139 000 €. Hors droit d'enregistrement et frais de notaire. Terrain + Maison proposés au prix de 299 000 € (Hors branchements et raccordements, papiers peints, peintures, revêtement de sol dans les chambres. Tarif modifiable sans préavis). Etiquette énergie : A. Différents modèles disponibles pour ce terrain. Assurances et garanties du constructeur (RC professionnelle, décennale, dommage ouvrage, garantie de remboursement de l'acompte, livraison à prix et délai convenu) : https://www.maisons-de-manon.fr/informations-legales/. HEXAOM Services est enregistré auprès de l'ORIAS en tant que Courtier en financement, Niveau 1, sous le numéro 14001345.Agence Maisons de Manon de Brignoles (83170)
- Téléphone :
- 04 94 37 50 39
- Adressse :
- Chemin du Beouvésé
83170 Brignoles, France
