Maison neuve à
Bessan (34550) Référence : AB2385504_1

Prix du projet : Maison avec Terrain

prix 258 000 €

  • 2 pièces
  • 1 chambre
  • Surface maison 50 m2

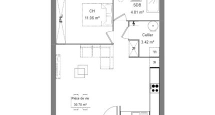
PROJET DE CONSTRUCTION - Maison de 2 pièces (50 m²) à Bessan
IDÉALEMENT SITUÉE - MAISON 2 PIÈCES
À vendre : sur le littoral méditerranéen et à deux pas de Béziers, nous sommes ravis de vous présenter, idéalement située dans Bessan (34550), cette maison de 2 pièces de plain-pied de 50 m² et de 454 m² de terrain. Elle comporte une chambre, une cuisine et une salle de bains.
(Carrelage inclus dans toutes les pièces / Raccordements inclus).
Cette maison est située dans un quartier attractif. L'École Maternelle Georges Bégou se trouve à moins de 10 minutes à pied. Niveau transports en commun, il y a deux gares (Vias et Agde) à moins de 10 minutes en voiture. Les autoroutes A9 et A75 sont accessibles à moins de 7 km. On trouve un bassin de natation, un tennis, deux commerces et une poissonnerie à quelques minutes.
Elle est proposée à l'achat pour 258 000 €.
Pour plus d'information contacter (Anthony BALLESTER : 06-27-21-51-55) Maisons de Manon Béziers pour échanger sur votre projet et réaliser une étude gratuite. (Plan personnalisable). Tous nos ouvrages sont réalisés sur-mesure en fonction de vos attentes et de nos échanges avec vous ainsi que dans le respect de la règlementation RE 2020. Ce projet comporte les garanties suivantes: Contrat de construction CCMI. Dommage/Ouvrage. RC Garantie décennale. Parfaite achèvement. Etude de sol G2. Prix et délais convenu. Garantie de livraison. Garantie financière Pour votre tranquillité nous nous occupons de toutes les formalités administratives.

Mentions légales

Terrain proposé par un partenaire foncier selon disponibilités et autorisation de publicité au prix de 158 900 €. Hors droit d'enregistrement et frais de notaire. Terrain + Maison proposés au prix de 99 100 € (Hors branchements et raccordements, papiers peints, peintures, revêtement de sol dans les chambres. Tarif modifiable sans préavis). Etiquette énergie : A. Différents modèles disponibles pour ce terrain. Assurances et garanties du constructeur (RC professionnelle, décennale, dommage ouvrage, garantie de remboursement de l'acompte, livraison à prix et délai convenu) : https://www.maisons-de-manon.fr/informations-legales/. HEXAOM Services est enregistré auprès de l'ORIAS en tant que Courtier en financement, Niveau 1, sous le numéro 14001345.

Contactez l'agence de Béziers

04 67 00 87 30

    * Champs obligatoires

    Vos informations sont traitées par HEXAOM et transmises à un conseiller commercial qui vous contactera afin de répondre à votre demande. Les plans et images présentés sur notre site sont la propriété d’HEXAOM et ne peuvent pas être reproduits sans son accord. Pour retrouver notre politique de protection des données personnelles et exercer vos droits conformément à la « loi informatique et liberté » cliquez-ici.