Maison neuve à
Bevons (04200) Référence : GFB2411531_1

Prix du projet : Maison avec Terrain

prix 370 000 €

  • 5 pièces
  • 4 chambres
  • Surface maison 113 m2

Maisons de Manon - Ligne Bois réalise pour vous un projet de maison individuelle à ossature bois, sur une parcelle de 1 500 m² située sur la commune de Bevons, au sein d'un lotissement intimiste de 7 lots, à 10 minutes de Sisteron, dans un environnement calme, avec exposition plein sud, vue panoramique et ambiance campagne.

Le modèle LUMI, de plain-pied, développe une surface généreuse et propose une architecture résolument contemporaine, pensée pour offrir luminosité, confort et fluidité des espaces.
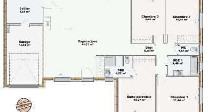
L'espace de vie central, d'environ 45 m², accueille une cuisine ouverte sur le salon/salle à manger, largement tournée vers les extérieurs grâce à de grandes ouvertures, favorisant la lumière naturelle et la connexion avec le jardin.
Un cellier attenant et un garage intégré viennent compléter la partie fonctionnelle de la maison.
L'espace nuit se compose d'une suite parentale avec salle d'eau privative, ainsi que de trois chambres, d'une salle de bain, d'un WC indépendant et d'un dégagement optimisant la circulation et l'intimité de chacun.
L'architecture du modèle LUMI se distingue par ses lignes horizontales élégantes, son toit à faible pente d'inspiration méditerranéenne et ses jeux de volumes, offrant une maison moderne, équilibrée et parfaitement intégrée à son environnement.
Ce projet est réalisé en ossature bois, un mode constructif offrant de nombreux avantages :
une construction jusqu'à 5 mois plus rapide qu'une maison traditionnelle,
un excellent confort thermique et acoustique, été comme hiver,
un chantier propre et calme, grâce à la préfabrication des murs en atelier hors site,
un impact environnemental fortement réduit, avec une empreinte carbone bien inférieure à celle d'une construction traditionnelle.
Prestations et équipements de qualité, adaptables selon vos besoins : toiture tuiles, menuiseries anthracite avec volets roulants centralisés, domotique, carrelage grands formats, WC suspendus, cloisons techniques, alarme, etc.
Construction conforme à

Mentions légales

Terrain proposé par un partenaire foncier selon disponibilités et autorisation de publicité au prix de 115 000 €. Hors droit d'enregistrement et frais de notaire. Terrain + Maison proposés au prix de 370 000 € (Hors branchements et raccordements, papiers peints, peintures, revêtement de sol dans les chambres. Tarif modifiable sans préavis). Etiquette énergie : A. Différents modèles disponibles pour ce terrain. Assurances et garanties du constructeur (RC professionnelle, décennale, dommage ouvrage, garantie de remboursement de l'acompte, livraison à prix et délai convenu) : https://www.maisons-de-manon.fr/informations-legales/. HEXAOM Services est enregistré auprès de l'ORIAS en tant que Courtier en financement, Niveau 1, sous le numéro 14001345.

Contactez l'agence de Manosque

04 92 72 29 79

    * Champs obligatoires

    Vos informations sont traitées par HEXAOM et transmises à un conseiller commercial qui vous contactera afin de répondre à votre demande. Les plans et images présentés sur notre site sont la propriété d’HEXAOM et ne peuvent pas être reproduits sans son accord. Pour retrouver notre politique de protection des données personnelles et exercer vos droits conformément à la « loi informatique et liberté » cliquez-ici.