Maison neuve à
Bize-Minervois
(11120) Référence :
CDD2256568_5
Prix du projet : Maison avec Terrain
prix 162 915 €
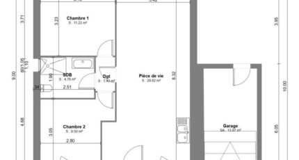
- 2 pièces
- 2 chambres
- Surface maison 50 m2
Bize-Minervois.
Nous construisons votre maison sur cette parcelle de 360m² viabilisée et hors lotissement à proximité immédiate de toutes les commodités :dentiste, kiné, écoles et pharmacie
Bize-Minervois est un village de charme, entouré de collines et traversé par une rivière offrant un espace baignade.
Idéalement situé sur la Minervoise à 20minutes de Narbonne, et 35 minutes de Béziers et son aéroport.
Contactez-nous au 04 68 32 61 05 pour discuter de votre projet de construction.
Mentions légales
Terrain proposé par un partenaire foncier selon disponibilités et autorisation de publicité au prix de 59 000 €. Hors droit d'enregistrement et frais de notaire. Maison proposée, avec un contrat de construction de maison individuelle, dans le cadre de la loi du 19/12/1990, au prix de 103 915 € (Hors branchements et raccordements, papiers peints, peintures, revêtement de sol dans les chambres, qui sont chiffrés dans les travaux qui restent à charge du client. Tarif modifiable sans préavis). Étiquette énergie : A. Différents modèles disponibles pour ce terrain. Assurances et garanties du constructeur comprises (RC professionnelle, décennale, dommage ouvrage).Agence Maisons de Manon de Narbonne (11100)
- Téléphone :
- 04 68 32 61 05
- Adressse :
- 2 rue Guiraud Riquier
11100 Narbonne, France
