Maison neuve à
Boutenac
(11200) Référence :
CDD2347843_1
Prix du projet : Maison avec Terrain
prix 153 910 €
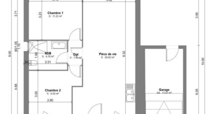
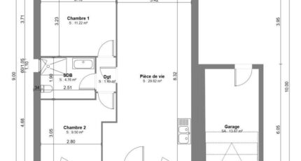
- 2 pièces
- 2 chambres
- Surface maison 50 m2
Boutenac.
Nous construisons votre villa RE 2020 sur cette parcelle de 400m² située dans un petit lotissement.
Boutenac est un village typique des Corbières, à 8 kms de Lézignan-Corbières, sa gare, ses collèges et lycée et à 20 minutes de Narbonne.
Avec un accès autoroute à 10 minutes, Boutenac vous offre la possibilité de profiter d'un cadre de vie près de la nature, aves toutes les commodités et services à moins de 10 minutes.
Contactez-nous au 04 68 32 61 05 pour discuter de votre projet de construction.
Mentions légales
Terrain proposé par un partenaire foncier selon disponibilités et autorisation de publicité au prix de 49 900 €. Hors droit d'enregistrement et frais de notaire. Maison proposée, avec un contrat de construction de maison individuelle, dans le cadre de la loi du 19/12/1990, au prix de 104 010 € (Hors branchements et raccordements, papiers peints, peintures, revêtement de sol dans les chambres, qui sont chiffrés dans les travaux qui restent à charge du client. Tarif modifiable sans préavis). Étiquette énergie : A. Différents modèles disponibles pour ce terrain. Assurances et garanties du constructeur comprises (RC professionnelle, décennale, dommage ouvrage).Agence Maisons de Manon de Narbonne (11100)
- Téléphone :
- 04 68 32 61 05
- Adressse :
- 2 rue Guiraud Riquier
11100 Narbonne, France
