Maison neuve à
Brignoles
(83170) Référence :
LB2425215_2
Prix du projet : Maison avec Terrain
prix 315 000 €
- 4 pièces
- 3 chambres
- Surface maison 98 m2
Brignoles, entre le charme du centre historique, la proximité des axes autoroutiers (A8) et le dynamisme du bassin d'emploi, idéal pour les actifs qui travaillent vers Aix, Marseille ou Toulon.
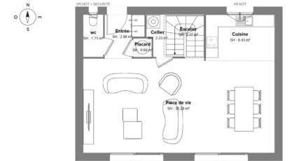
Devenez propriétaire au coeur de la Provence Verte ! Maisons de Manon vous propose une belle maison à étage de 3 chambres en lotissement.
Votre projet à partir de 315 000 € hors frais de notaire pour une villa neuve de 98 m² avec 3 chambres. La maison offre une belle pièce de vie avec cuisine ouverte, un cellier et un wc au rez-de-chaussée. Une suite parentale, deux chambres et une salle de bain seront proposées à l'étage.
Faire appel aux Maisons de Manon, c'est s'assurer d'un savoir-faire reconnu, d'un accompagnement sur-mesure et de toutes les garanties du contrat de construction (CCMI). Pour un projet qui vous ressemble, contactez Lucile Berthe au 06 23 96 86 94, Agence de Brignoles.
Mentions légales
Terrain proposé par un partenaire foncier selon disponibilités et autorisation de publicité au prix de 127 716 €. Hors droit d'enregistrement et frais de notaire. Terrain + Maison proposés au prix de 315 000 € (Hors branchements et raccordements, papiers peints, peintures, revêtement de sol dans les chambres. Tarif modifiable sans préavis). Etiquette énergie : A. Différents modèles disponibles pour ce terrain. Assurances et garanties du constructeur (RC professionnelle, décennale, dommage ouvrage, garantie de remboursement de l'acompte, livraison à prix et délai convenu) : https://www.maisons-de-manon.fr/informations-legales/. HEXAOM Services est enregistré auprès de l'ORIAS en tant que Courtier en financement, Niveau 1, sous le numéro 14001345.Agence Maisons de Manon de Brignoles (83170)
- Téléphone :
- 04 94 37 50 39
- Adressse :
- Chemin du Beouvésé
83170 Brignoles, France
