Maison neuve à
Carcès
(83570) Référence :
FI2303104_1
Prix du projet : Maison avec Terrain
prix 299 000 €
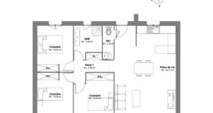
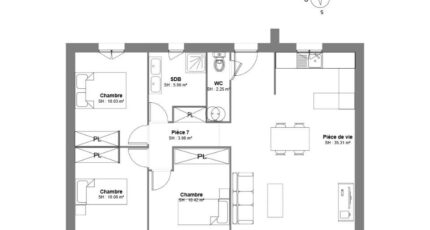
- 3 pièces
- 3 chambres
- Surface maison 77 m2
CARCES: à 20min de Brignoles, 10 min du Luc
Projet de construction sur un terrain de 670m2, terrain plat, vue dégagé , quartier résidentiel et à proximité des commodités
Venez construire votre maison, le projet présenté est entièrement personnalisable en fonction de vos besoins et envies
Plain pied ou étage possible
Le modèle présenté comporte 3 chambres et 1 salle de bain
Le prix de vente de ce projet est à partir de 423500 € hors frais de notaire, taxes et aménagements clients)
N'hésitez pas à prendre contact avec Florence INGARGIOLA O616275393 pour toute information sur la maison, sur les modalités de vente et les démarches à suivre.
Mentions légales
Terrain proposé par un partenaire foncier selon disponibilités et autorisation de publicité au prix de 130 000 €. Hors droit d'enregistrement et frais de notaire. Maison proposée, avec un contrat de construction de maison individuelle, dans le cadre de la loi du 19/12/1990, au prix de 169 000 € (Hors branchements et raccordements, papiers peints, peintures, revêtement de sol dans les chambres, qui sont chiffrés dans les travaux qui restent à charge du client. Tarif modifiable sans préavis). Étiquette énergie : A. Différents modèles disponibles pour ce terrain. Assurances et garanties du constructeur comprises (RC professionnelle, décennale, dommage ouvrage).Agence Maisons de Manon de Brignoles (83170)
- Téléphone :
- 04 94 37 50 39
- Adressse :
- Chemin du Beouvésé
83170 Brignoles, France
