Maison neuve à
Carcès
(83570) Référence :
BE2457967_2
Prix du projet : Maison avec Terrain
prix 462 000 €
- 7 pièces
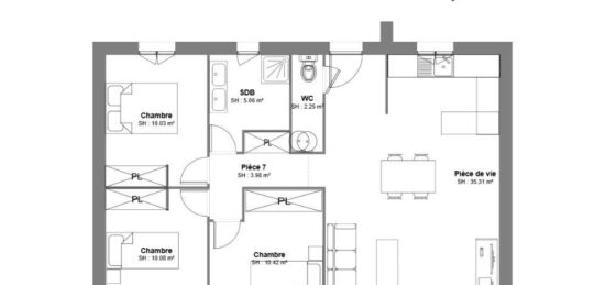
- 5 chambres
- Surface maison 155 m2
Proposition de bastide provençale à Carcès.
155 m² habitables pour de beaux volumes : 5 chambres et 3 salles de bain.
Idéalement située sur les hauteurs du village, nous vous proposons cette maison sur 1400 m² de terrain.
Pour tout renseignement vous pouvez contacter Bérengère Eudier au O646314O98 et prendre rendez-vous à l'agence de Brignoles.
Modulables selon vos envies nos maisons sont confortables et fonctionnelles.
Vous trouverez y trouverez commerces, boulangeries, pharmacies, écoles maternelle, primaire et un collège.
Son prix de vente avec le terrain est de 462 000 €.
Hors frais de notaire et aménagements extérieurs.
N'hésitez plus si vous cherchez un quartier calme et boisé pour réaliser votre projet de vie.
Nous mettons notre équipe à votre disposition pour une étude approfondie d'un projet neuf avec un contrat de construction de maison individuelle incluant assurances et garanties (RC pro, décennale, dommage ouvrage, garantie de remboursement, livraison à prix et délai convenu).
Maisons de Manon : Plus qu'une maison, un art de vivre !
Mentions légales
Terrain proposé par un partenaire foncier selon disponibilités et autorisation de publicité au prix de 135 000 €. Hors droit d'enregistrement et frais de notaire. Terrain + Maison proposés au prix de 462 000 € (Hors branchements et raccordements, papiers peints, peintures, revêtement de sol dans les chambres. Tarif modifiable sans préavis). Etiquette énergie : A. Différents modèles disponibles pour ce terrain. Assurances et garanties du constructeur (RC professionnelle, décennale, dommage ouvrage, garantie de remboursement de l'acompte, livraison à prix et délai convenu) : https://www.maisons-de-manon.fr/informations-legales/. HEXAOM Services est enregistré auprès de l'ORIAS en tant que Courtier en financement, Niveau 1, sous le numéro 14001345.Agence Maisons de Manon de Brignoles (83170)
- Téléphone :
- 04 94 37 50 39
- Adressse :
- Chemin du Beouvésé
83170 Brignoles, France
