Maison neuve à
Carcès
(83570) Référence :
FI2462049_2
Prix du projet : Maison avec Terrain
prix 299 000 €
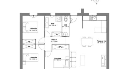
- 3 pièces
- 3 chambres
- Surface maison 77 m2
CARCES: à 20min de Brignoles, 10 min du Luc
Projet de construction sur un terrain de 670m2, terrain plat, vue dégagé , quartier résidentiel et à proximité des commodités
Venez construire votre maison, le projet présenté est entièrement personnalisable en fonction de vos besoins et envies
Plain pied ou étage possible
Le modèle présenté comporte 3 chambres et 1 salle de bain
Le prix de vente de ce projet est à partir de 423500 € hors frais de notaire, taxes et aménagements clients)
N'hésitez pas à prendre contact avec Florence INGARGIOLA O616275393 pour toute information sur la maison, sur les modalités de vente et les démarches à suivre.
Mentions légales
Terrain proposé par un partenaire foncier selon disponibilités et autorisation de publicité au prix de 130 000 €. Hors droit d'enregistrement et frais de notaire. Terrain + Maison proposés au prix de 299 000 € (Hors branchements et raccordements, papiers peints, peintures, revêtement de sol dans les chambres. Tarif modifiable sans préavis). Etiquette énergie : A. Différents modèles disponibles pour ce terrain. Assurances et garanties du constructeur (RC professionnelle, décennale, dommage ouvrage, garantie de remboursement de l'acompte, livraison à prix et délai convenu) : https://www.maisons-de-manon.fr/informations-legales/. HEXAOM Services est enregistré auprès de l'ORIAS en tant que Courtier en financement, Niveau 1, sous le numéro 14001345.Agence Maisons de Manon de Brignoles (83170)
- Téléphone :
- 04 94 37 50 39
- Adressse :
- Chemin du Beouvésé
83170 Brignoles, France
