Maison neuve à
Cessenon-sur-Orb (34460) Référence : AB2377213_5

Prix du projet : Maison avec Terrain

prix 201 000 €

  • 3 pièces
  • 2 chambres
  • Surface maison 70 m2

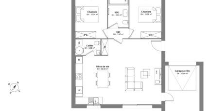
PROJET DE CONSTRUCTION - Maison de 3 pièces (70 m²) à Cessenon-sur-Orb
IDÉALEMENT SITUÉE - MAISON 3 PIÈCES
À 34 km de la côte méditerranéenne et à 20 km de Béziers, nous vous proposons cette maison de 3 pièces de plain-pied de 70 m² à vendre, idéalement située dans Cessenon-sur-Orb (34460).
Elle comporte deux chambres, une cuisine, un cellier et une salle de bains + GARAGE.
(Carrelage inclus dans toutes les pièces / Raccordements inclus).
Le terrain du bien s'étend sur 480 m².
Cette propriété se situe dans un quartier prisé. On trouve trois établissements scolaires à moins de 10 minutes à pied et, comme le Collège Basile Rouaix, Unité Pédagogique de Proximité Collège Jean Jaurès Saint-Chinian ou l'École Élémentaire les Oliviers. L'autoroute A75 est accessible à 20 km. Il y a un tennis, un supermarché, trois boulangeries, un bureau de poste et une boucherie-charcuterie dans les environs.
Elle est proposée à l'achat pour 201 000 €.
Pour plus d'information contacter (Anthony BALLESTER : 06-27-21-51-55) Maisons de Manon Béziers pour échanger sur votre projet et réaliser une étude gratuite. (Plan personnalisable). Tous nos ouvrages sont réalisés sur-mesure en fonction de vos attentes et de nos échanges avec vous ainsi que dans le respect de la règlementation RE 2020. Ce projet comporte les garanties suivantes: Contrat de construction CCMI. Dommage/Ouvrage. RC Garantie décennale. Parfaite achèvement. Etude de sol G2. Prix et délais convenu. Garantie de livraison. Garantie financière Pour votre tranquillité nous nous occupons de toutes les formalités administratives.

Mentions légales

Terrain proposé par un partenaire foncier selon disponibilités et autorisation de publicité au prix de 75 000 €. Hors droit d'enregistrement et frais de notaire. Terrain + Maison proposés au prix de 201 000 € (Hors branchements et raccordements, papiers peints, peintures, revêtement de sol dans les chambres. Tarif modifiable sans préavis). Etiquette énergie : A. Différents modèles disponibles pour ce terrain. Assurances et garanties du constructeur (RC professionnelle, décennale, dommage ouvrage, garantie de remboursement de l'acompte, livraison à prix et délai convenu) : https://www.maisons-de-manon.fr/informations-legales/. HEXAOM Services est enregistré auprès de l'ORIAS en tant que Courtier en financement, Niveau 1, sous le numéro 14001345.

Contactez l'agence de Béziers

04 67 00 87 30

    * Champs obligatoires

    Vos informations sont traitées par HEXAOM et transmises à un conseiller commercial qui vous contactera afin de répondre à votre demande. Les plans et images présentés sur notre site sont la propriété d’HEXAOM et ne peuvent pas être reproduits sans son accord. Pour retrouver notre politique de protection des données personnelles et exercer vos droits conformément à la « loi informatique et liberté » cliquez-ici.