Maison neuve à
Cruzy (34310) Référence : AB2341194_2

Prix du projet : Maison avec Terrain

prix 202 500 €

  • 3 pièces
  • 2 chambres
  • Surface maison 62 m2

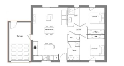
PROJET DE CONSTRUCTION - Maison de 3 pièces (62 m²) à Cruzy
PROCHE DE BÉZIERS - MAISON 3 PIÈCES
À 33 km de la côte méditerranéenne et à quelques kilomètres de Béziers, nous vous proposons cette maison de 3 pièces de plain-pied de 62 m² à Cruzy (34310). Conçue de plain-pied, elle est composée de deux chambres, d'une cuisine et d'une salle de bains.
Le terrain de la propriété est de 704 m².
(Carrelage inclus dans toutes les pièces / Raccordements inclus).
L'École Primaire Henri Bouisset est implantée à moins de 10 minutes à pied. Il y a une bibliothèque, un tennis, une boulangerie, une épicerie et une boucherie-charcuterie à proximité.
Elle est proposée à l'achat pour 202 500 €.
Pour plus d'information contacter (Anthony BALLESTER : 06-27-21-51-55) Maisons de Manon Béziers pour échanger sur votre projet et réaliser une étude gratuite. (Plan personnalisable). Tous nos ouvrages sont réalisés sur-mesure en fonction de vos attentes et de nos échanges avec vous ainsi que dans le respect de la règlementation RE 2020. Ce projet comporte les garanties suivantes: Contrat de construction CCMI. Dommage/Ouvrage. RC Garantie décennale. Parfaite achèvement. Etude de sol G2. Prix et délais convenu. Garantie de livraison. Garantie financière Pour votre tranquillité nous nous occupons de toutes les formalités administratives.

Mentions légales

Terrain proposé par un partenaire foncier selon disponibilités et autorisation de publicité au prix de 80 000 €. Hors droit d'enregistrement et frais de notaire. Maison proposée, avec un contrat de construction de maison individuelle, dans le cadre de la loi du 19/12/1990, au prix de 122 500 € (Hors branchements et raccordements, papiers peints, peintures, revêtement de sol dans les chambres, qui sont chiffrés dans les travaux qui restent à charge du client. Tarif modifiable sans préavis). Étiquette énergie : A. Différents modèles disponibles pour ce terrain. Assurances et garanties du constructeur comprises (RC professionnelle, décennale, dommage ouvrage).

Contactez l'agence de Béziers

04 67 00 87 30

    * Champs obligatoires

    Vos informations sont traitées par HEXAOM et transmises à un conseiller commercial qui vous contactera afin de répondre à votre demande. Les plans et images présentés sur notre site sont la propriété d’HEXAOM et ne peuvent pas être reproduits sans son accord. Pour retrouver notre politique de protection des données personnelles et exercer vos droits conformément à la « loi informatique et liberté » cliquez-ici.