Maison neuve à
La Saulce (05110) Référence : GFB2418971_3

Prix du projet : Maison avec Terrain

prix 492 000 €

  • 4 pièces
  • 3 chambres
  • Surface maison 120 m2

Maisons de Manon - Ligne Bois réalise pour vous un projet de maison individuelle à ossature bois, sur un terrain de 1 500 m² entièrement viabilisé, situé à Curban, dans le quartier résidentiel de la Curnerie, avec vue dégagée et très belle exposition.

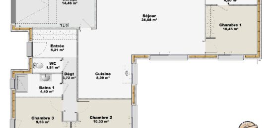
Le modèle LOFT 120 est une maison de plain-pied développant environ 120 m² habitables, au design contemporain affirmé, pensée pour offrir de grands volumes, une luminosité exceptionnelle et un confort de vie haut de gamme.
La maison s'articule autour d'un vaste espace de vie central d'environ 49 m², avec cuisine ouverte sur le salon/salle à manger, offrant une circulation fluide et une ouverture directe sur les extérieurs, idéale pour une vie dedans/dehors.
Un cellier, un WC indépendant et un garage intégré complètent la partie fonctionnelle.
L'espace nuit est parfaitement séparé et comprend une suite parentale avec salle d'eau et dressing, ainsi que deux chambres supplémentaires, une salle de bains et des dégagements optimisant le confort et l'intimité de chacun.
L'architecture du modèle LOFT 120 se distingue par ses lignes épurées, ses volumes horizontaux marqués et son esthétique résolument moderne, parfaitement adaptée aux terrains contemporains et aux environnements résidentiels qualitatifs.
Ce projet est réalisé en ossature bois, un mode constructif aux avantages majeurs :
une construction jusqu'à 5 mois plus rapide qu'une maison traditionnelle,
un excellent confort thermique et acoustique, été comme hiver,
un chantier propre et calme, grâce à la préfabrication des murs en atelier hors site,
un impact environnemental fortement réduit, avec une empreinte carbone nettement inférieure à celle d'une construction traditionnelle.
Prestations et équipements de qualité, adaptables selon vos besoins : menuiseries avec volets roulants, carrelage grands formats, cloisons techniques, équipements sanitaires complets, domotique possible, etc.
Construction conforme à la réglementation environnementale RE 2020.
Projet perso

Mentions légales

Terrain proposé par un partenaire foncier selon disponibilités et autorisation de publicité au prix de 160 000 €. Hors droit d'enregistrement et frais de notaire. Terrain + Maison proposés au prix de 492 000 € (Hors branchements et raccordements, papiers peints, peintures, revêtement de sol dans les chambres. Tarif modifiable sans préavis). Etiquette énergie : A. Différents modèles disponibles pour ce terrain. Assurances et garanties du constructeur (RC professionnelle, décennale, dommage ouvrage, garantie de remboursement de l'acompte, livraison à prix et délai convenu) : https://www.maisons-de-manon.fr/informations-legales/. HEXAOM Services est enregistré auprès de l'ORIAS en tant que Courtier en financement, Niveau 1, sous le numéro 14001345.

Contactez l'agence de Manosque

04 92 72 29 79

    * Champs obligatoires

    Vos informations sont traitées par HEXAOM et transmises à un conseiller commercial qui vous contactera afin de répondre à votre demande. Les plans et images présentés sur notre site sont la propriété d’HEXAOM et ne peuvent pas être reproduits sans son accord. Pour retrouver notre politique de protection des données personnelles et exercer vos droits conformément à la « loi informatique et liberté » cliquez-ici.