Maison neuve à
Digne-les-Bains (04000) Référence : GFB2404863_1

Prix du projet : Maison avec Terrain

prix 331 000 €

  • 4 pièces
  • 3 chambres
  • Surface maison 94 m2

Maisons de Manon - Ligne Bois réalise pour vous un projet de construction de maison individuelle à ossature bois, à votre image, sur une parcelle de 554 m² ( d'autre lots sont disponible nous consultez pour les surface et prix) située à Digne-les-Bains, en bordure de la Bléone, au sein d'un lotissement de 18 lots, dans un environnement agréable, offrant cadre de vie et proximité des commodités.

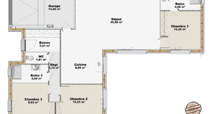
Le modèle ÉPURE 94 est une maison de plain-pied développant environ 93 m² habitables, au style sobre et contemporain, pensée pour offrir un excellent confort de vie et une organisation intérieure équilibrée.
La maison s'articule autour d'un bel espace de vie lumineux d'environ 35 m², comprenant une cuisine ouverte sur le séjour, favorisant la convivialité et l'ouverture sur les extérieurs.
Une entrée fonctionnelle, un cellier, un WC indépendant ainsi qu'un garage intégré complètent la partie jour.
L'espace nuit se compose de trois chambres, d'une salle de bains, d'une seconde salle d'eau et d'un dégagement central assurant une circulation fluide et une séparation agréable entre les espaces jour et nuit.
L'architecture du modèle ÉPURE 93 s'inscrit dans un esprit méditerranéen contemporain, avec des volumes simples, une toiture en tuiles et une conception pensée pour une intégration harmonieuse dans son environnement, notamment en secteur résidentiel.
Ce projet est réalisé en ossature bois, un mode constructif aux avantages majeurs :
une construction jusqu'à 5 mois plus rapide qu'une maison traditionnelle,
un excellent confort thermique et acoustique, été comme hiver,
un chantier propre et calme, grâce à la préfabrication des murs en atelier hors site,
un impact environnemental fortement réduit, avec une empreinte carbone nettement inférieure à celle d'une construction traditionnelle.
Prestations et équipements de qualité, adaptables selon vos besoins : menuiseries avec volets roulants, carrelage grands formats, cloisons techniques, équipements sanitaires complets, domotiq

Mentions légales

Terrain proposé par un partenaire foncier selon disponibilités et autorisation de publicité au prix de 85 000 €. Hors droit d'enregistrement et frais de notaire. Terrain + Maison proposés au prix de 331 000 € (Hors branchements et raccordements, papiers peints, peintures, revêtement de sol dans les chambres. Tarif modifiable sans préavis). Etiquette énergie : A. Différents modèles disponibles pour ce terrain. Assurances et garanties du constructeur (RC professionnelle, décennale, dommage ouvrage, garantie de remboursement de l'acompte, livraison à prix et délai convenu) : https://www.maisons-de-manon.fr/informations-legales/. HEXAOM Services est enregistré auprès de l'ORIAS en tant que Courtier en financement, Niveau 1, sous le numéro 14001345.

Contactez l'agence de Manosque

04 92 72 29 79

    * Champs obligatoires

    Vos informations sont traitées par HEXAOM et transmises à un conseiller commercial qui vous contactera afin de répondre à votre demande. Les plans et images présentés sur notre site sont la propriété d’HEXAOM et ne peuvent pas être reproduits sans son accord. Pour retrouver notre politique de protection des données personnelles et exercer vos droits conformément à la « loi informatique et liberté » cliquez-ici.