Maison neuve à
Espondeilhan (34290) Référence : AB2415327_1

Prix du projet : Maison avec Terrain

prix 197 000 €

  • 2 pièces
  • 1 chambre
  • Surface maison 50 m2

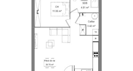
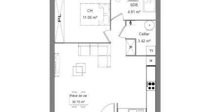
PROJET DE CONSTRUCTION - Maison de 2 pièces (50 m²) à Espondeilhan
MAISON 2 PIÈCES - PROCHE DE BÉZIERS
En vente : localisée à 22 km de la côte méditerranéenne et à deux pas de Béziers, à Espondeilhan (34290), nous vous proposons cette maison de 2 pièces de plain-pied de 50 m². Conçue de plain-pied, elle propose une chambre, une cuisine et une salle de bains.
Le terrain du bien est de 340 m².
(Carrelage inclus dans toutes les pièces / Raccordements inclus).
Une école primaire est implantée dans le quartier. Côté transports, il y a la gare Magalas à moins de 10 minutes en voiture. Il y a un accès à l'autoroute A75 à 8 km. On trouve un tennis, une bibliothèque et une boulangerie à proximité.
Elle est à vendre pour la somme de 197 000 €.
Pour plus d'information contacter Anthony BALLESTER : 06-27-21-51-55 Maisons de Manon Béziers pour échanger sur votre projet et réaliser une étude gratuite. (Plan personnalisable). Tous nos ouvrages sont réalisés sur-mesure en fonction de vos attentes et de nos échanges avec vous ainsi que dans le respect de la règlementation RE 2020. Ce projet comporte les garanties suivantes: Contrat de construction CCMI. Dommage/Ouvrage. RC Garantie décennale. Parfaite achèvement. Etude de sol G2. Prix et délais convenu. Garantie de livraison. Garantie financière Pour votre tranquillité nous nous occupons de toutes les formalités administratives.

Mentions légales

Terrain proposé par un partenaire foncier selon disponibilités et autorisation de publicité au prix de 99 900 €. Hors droit d'enregistrement et frais de notaire. Terrain + Maison proposés au prix de 197 000 € (Hors branchements et raccordements, papiers peints, peintures, revêtement de sol dans les chambres. Tarif modifiable sans préavis). Etiquette énergie : A. Différents modèles disponibles pour ce terrain. Assurances et garanties du constructeur (RC professionnelle, décennale, dommage ouvrage, garantie de remboursement de l'acompte, livraison à prix et délai convenu) : https://www.maisons-de-manon.fr/informations-legales/. HEXAOM Services est enregistré auprès de l'ORIAS en tant que Courtier en financement, Niveau 1, sous le numéro 14001345.

Contactez l'agence de Béziers

04 67 00 87 30

    * Champs obligatoires

    Vos informations sont traitées par HEXAOM et transmises à un conseiller commercial qui vous contactera afin de répondre à votre demande. Les plans et images présentés sur notre site sont la propriété d’HEXAOM et ne peuvent pas être reproduits sans son accord. Pour retrouver notre politique de protection des données personnelles et exercer vos droits conformément à la « loi informatique et liberté » cliquez-ici.