Maison neuve à
Flassans-sur-Issole
(83340) Référence :
FI2461397_1
Prix du projet : Maison avec Terrain
prix 335 000 €
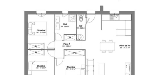
- 3 pièces
- 3 chambres
- Surface maison 77 m2
PROJET DE CONSTRUCTION Votre Villa de Plain-Pied sur 2 277 m² à Flassans
Un Terrain d'Exception au Calme et Proche du Village
Saisissez l'opportunité de construire votre futur foyer sur ce superbe terrain plat de 2 277 m² situé à Flassans-sur-Issole. Profitez d'un cadre de vie paisible, à deux pas des commodités du village, avec un potentiel rare : une emprise au sol de 10 % et la possibilité de division pour réaliser une copropriété.
Zoom sur le Modèle Proposé
Nous avons imaginé pour vous une villa de plain-pied optimisée et lumineuse, idéale pour une famille :
Pièce de vie spacieuse : Un séjour/cuisine de plus de 35 m² ouvert sur le jardin.
Espace Nuit : 3 chambres confortables (environ 10 m² chacune) toutes équipées de placards intégrés (PL).
toit 4 pentes
Confort : Une salle de bain centrale, des WC séparés et un dégagement optimisé pour éviter toute perte de place.
Le plus : Un plan traversant qui garantit une luminosité naturelle tout au long de la journée.
Un Projet 100% Personnalisable
Ce plan est une base de réflexion : votre projet est entièrement modifiable selon vos besoins, vos envies et votre budget. Que vous souhaitiez modifier l'agencement, ajouter un garage ou changer de style architectural, nous adaptons tout !
Caractéristiques du Projet
Prix : À partir de 335 000 € (Maison + Terrain).
Localisation : Flassans-sur-Issole, proche village.
Technique : Poteau incendie installé, fosse septique à prévoir.
Garanties : Projet conforme à la norme RE2020, incluant toutes les garanties du contrat CCMI. Prix hors travaux à la charge du client (terrassement, raccordements, aménagements extérieurs) et frais de notaire.
Contactez-nous pour votre étude gratuite
Pour toute information complémentaire ou pour obtenir un chiffrage précis de votre projet personnalisé, contactez :
Florence - Maisons de Manon Brignoles
O6 16 27 53 93
Mentions légales
Terrain proposé par un partenaire foncier selon disponibilités et autorisation de publicité au prix de 185 000 €. Hors droit d'enregistrement et frais de notaire. Terrain + Maison proposés au prix de 335 000 € (Hors branchements et raccordements, papiers peints, peintures, revêtement de sol dans les chambres. Tarif modifiable sans préavis). Etiquette énergie : A. Différents modèles disponibles pour ce terrain. Assurances et garanties du constructeur (RC professionnelle, décennale, dommage ouvrage, garantie de remboursement de l'acompte, livraison à prix et délai convenu) : https://www.maisons-de-manon.fr/informations-legales/. HEXAOM Services est enregistré auprès de l'ORIAS en tant que Courtier en financement, Niveau 1, sous le numéro 14001345.Agence Maisons de Manon de Brignoles (83170)
- Téléphone :
- 04 94 37 50 39
- Adressse :
- Chemin du Beouvésé
83170 Brignoles, France
