Maison neuve à
Fleury
(11560) Référence :
XD2386070_3
Prix du projet : Maison avec Terrain
prix 343 736 €
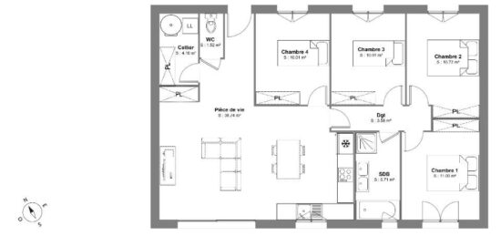
- 5 pièces
- 4 chambres
- Surface maison 110 m2
Fleury d'Aude.
Nous construisons votre villa RE 2020 sur cette parcelle de 495m² idéalement située dans le village.
Fleury est une charmante commune tous commerces, entre Narbonne, Béziers, les plages et la Clape, proposant un cadre de vie à la fois pratique et proche de la nature.
Contactez-nous au 04 68 32 61 05 pour discuter de votre projet de construction.
Mentions légales
Terrain proposé par un partenaire foncier selon disponibilités et autorisation de publicité au prix de 119 900 €. Hors droit d'enregistrement et frais de notaire. Terrain + Maison proposés au prix de 343 736 € (Hors branchements et raccordements, papiers peints, peintures, revêtement de sol dans les chambres. Tarif modifiable sans préavis). Etiquette énergie : A. Différents modèles disponibles pour ce terrain. Assurances et garanties du constructeur (RC professionnelle, décennale, dommage ouvrage, garantie de remboursement de l'acompte, livraison à prix et délai convenu) : https://www.maisons-de-manon.fr/informations-legales/. HEXAOM Services est enregistré auprès de l'ORIAS en tant que Courtier en financement, Niveau 1, sous le numéro 14001345.Agence Maisons de Manon de Narbonne (11100)
- Téléphone :
- 04 68 32 61 05
- Adressse :
- 2 rue Guiraud Riquier
11100 Narbonne, France
