Maison neuve à
Gonfaron
(83590) Référence :
FI2353335_1
Prix du projet : Maison avec Terrain
prix 275 000 €
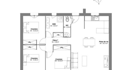
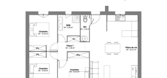
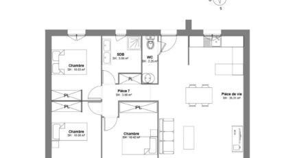
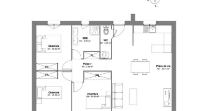
- 3 pièces
- 3 chambres
- Surface maison 77 m2
Gonfaron 83590: A 20 min de Toulon et 20 min de Brignoles
Les maisons de Manon Brignoles vous propose de réaliser votre maison de plain pied (entièrement personnalisable, nombre de chambre, superficie de la maison, garage...) selon vos envies. Ce projet comporte 3 chambres et 1 salle de bain
Construction conforme à la RE2020 aux dernières normes permettant une faible consommation énergétique, en hiver mais aussi en été.
Contactez Florence INGARGIOLA au O6.16.27.53.93 pour une étude personnalisée de votre projet à partir de 275000 euros . Maisons de Manon Brignoles vous accompagne dans toutes vos démarches et à toutes les étapes de votre projet.
Mentions légales
Terrain proposé par un partenaire foncier selon disponibilités et autorisation de publicité au prix de 125 000 €. Hors droit d'enregistrement et frais de notaire. Terrain + Maison proposés au prix de 275 000 € (Hors branchements et raccordements, papiers peints, peintures, revêtement de sol dans les chambres. Tarif modifiable sans préavis). Etiquette énergie : A. Différents modèles disponibles pour ce terrain. Assurances et garanties du constructeur (RC professionnelle, décennale, dommage ouvrage, garantie de remboursement de l'acompte, livraison à prix et délai convenu) : https://www.maisons-de-manon.fr/informations-legales/. HEXAOM Services est enregistré auprès de l'ORIAS en tant que Courtier en financement, Niveau 1, sous le numéro 14001345.Agence Maisons de Manon de Brignoles (83170)
- Téléphone :
- 04 94 37 50 39
- Adressse :
- Chemin du Beouvésé
83170 Brignoles, France
