Maison neuve à
Hyères
(83400) Référence :
PA2314986_2
Prix du projet : Maison avec Terrain
prix 360 000 €
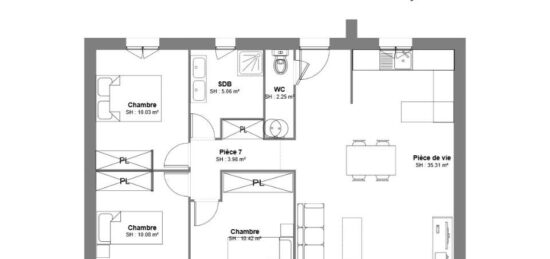
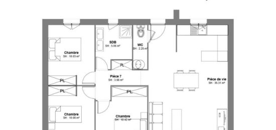
- 3 pièces
- 2 chambres
- Surface maison 60 m2
HYERES LES PALMIERS, secteur Ouest, proche des commodités, du centre ville, des axes routiers, des écoles et des centres médicaux, nous vous proposons de devenir propriétaires de votre maison de plain pieds avec 2 chambres sur ce très beau terrain plat, pour un prix à parti de 360 000 Euros hors frais notariés et taxes.
Opportunité très rare sur la commune, à saisir rapidement.
Renseignements auprès de Patrice ANDREANI Maison de Manon La Crau O6 31 29 O9 46.
D'autres projets de même type avec d'autres surfaces de maison et possibilité de maison à étage disponibles sur demande.
Annonce proposée par un Agent Commercial Partenaire.
Mentions légales
Terrain proposé par un partenaire foncier selon disponibilités et autorisation de publicité au prix de 225 000 €. Hors droit d'enregistrement et frais de notaire. Maison proposée, avec un contrat de construction de maison individuelle, dans le cadre de la loi du 19/12/1990, au prix de 135 000 € (Hors branchements et raccordements, papiers peints, peintures, revêtement de sol dans les chambres, qui sont chiffrés dans les travaux qui restent à charge du client. Tarif modifiable sans préavis). Étiquette énergie : A. Différents modèles disponibles pour ce terrain. Assurances et garanties du constructeur comprises (RC professionnelle, décennale, dommage ouvrage).Agence Maisons de Manon de La Crau (83260)
- Téléphone :
- 04 94 61 23 85
- Adressse :
- 195 chemin de l'Estagnol
83260 La Crau, France
