Maison neuve à
Le Cannet (06110) Référence : PL2432814_2

Prix du projet : Maison avec Terrain

prix 689 000 €

  • 5 pièces
  • 4 chambres
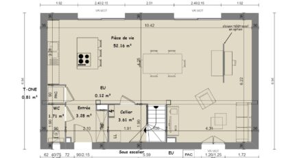
  • Surface maison 119 m2

VENTE : maison de 5 pièces (119 m²) au Cannet
PROCHE CENTRE-VILLE - MAISON 5 PIÈCES NEUVE
Sur le littoral méditerranéen et proche du Monaco, Maisons de Manon Le Cannet vous présente à vendre, proche du centre-ville du Cannet (06110), cette maison de 5 pièces de 119 m² et de 600 m² de terrain.
Cette maison comporte 2 niveaux. Son intérieur inclut quatre chambres, une cuisine et deux salles de bains. La maison est neuve.
Plusieurs écoles (maternelle, élémentaire et collège) sont implantées à moins de 10 minutes à pied, tout comme deux structures d'accueil pour la petite enfance. Côté transports, il y a 11 gares à moins de 10 minutes en voiture. On trouve un accès à l'autoroute A8 à 2 km. On trouve une bibliothèque, un tennis, un bassin de natation, des commerces, des boulangeries, deux supermarchés, des boucheries-charcuteries et deux bureaux de poste à quelques minutes du bien.
Elle est à vendre pour la somme de 689 000 €.
Contactez Philippe LESBROS (06-63-28-70-67) pour toute question sur la maison, sur les démarches à suivre ou sur les modalités de vente. Maisons de Manon Le Cannet vous accompagne dans tous vos projets immobiliers et à toutes les étapes de l'achat.

Annonce proposée par un Agent Commercial Partenaire.

Mentions légales

Terrain proposé par un partenaire foncier selon disponibilités et autorisation de publicité au prix de 360 000 €. Hors droit d'enregistrement et frais de notaire. Terrain + Maison proposés au prix de 689 000 € (Hors branchements et raccordements, papiers peints, peintures, revêtement de sol dans les chambres. Tarif modifiable sans préavis). Etiquette énergie : A. Différents modèles disponibles pour ce terrain. Assurances et garanties du constructeur (RC professionnelle, décennale, dommage ouvrage, garantie de remboursement de l'acompte, livraison à prix et délai convenu) : https://www.maisons-de-manon.fr/informations-legales/. HEXAOM Services est enregistré auprès de l'ORIAS en tant que Courtier en financement, Niveau 1, sous le numéro 14001345.

Contactez l'agence de Le Cannet

04 93 46 50 05

    * Champs obligatoires

    Vos informations sont traitées par HEXAOM et transmises à un conseiller commercial qui vous contactera afin de répondre à votre demande. Les plans et images présentés sur notre site sont la propriété d’HEXAOM et ne peuvent pas être reproduits sans son accord. Pour retrouver notre politique de protection des données personnelles et exercer vos droits conformément à la « loi informatique et liberté » cliquez-ici.