Maison neuve à
Le Luc
(83340) Référence :
AM2344799_1
Prix du projet : Maison avec Terrain
prix 320 000 €
- 3 pièces
- 3 chambres
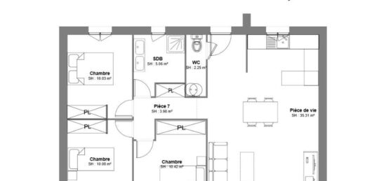
- Surface maison 85 m2
Les Maisons de Manon vous propose sur ce terrain diverses réalisations possible notamment notre nouveau modèle entièrement personnalisable de 85m² habitable avec un accès sud adapté au terrain. Il dispose de trois chambres, une salle d'eau, un cellier, deux wc séparés ainsi qu'une belle pièce de vie lumineuse avec cuisine ouverte à partir de 320 000€TTC (Incluant: le terrain, les frais de notaire, les viabilités, devis terrassier estimatif, hors cuisine, hors peinture, garage et terrasse en option). Vous disposerez de nombreuses prestations de qualités, carrelage grand format, WC suspendu, chauffage réversible, domotique...et d'un réel accompagnement tout au long du projet. Pour plus d'informations contactez votre conseiller commercial des Maisons de Manon Mr Maugras Alexandre au O679268866
Annonce proposée par un Agent Commercial Partenaire.
Mentions légales
Terrain proposé par un partenaire foncier selon disponibilités et autorisation de publicité au prix de 130 000 €. Hors droit d'enregistrement et frais de notaire. Maison proposée, avec un contrat de construction de maison individuelle, dans le cadre de la loi du 19/12/1990, au prix de 190 000 € (Hors branchements et raccordements, papiers peints, peintures, revêtement de sol dans les chambres, qui sont chiffrés dans les travaux qui restent à charge du client. Tarif modifiable sans préavis). Étiquette énergie : A. Différents modèles disponibles pour ce terrain. Assurances et garanties du constructeur comprises (RC professionnelle, décennale, dommage ouvrage).Agence Maisons de Manon de Callian (83440)
- Téléphone :
- 04 94 76 22 22
- Adressse :
- D 562
83440 Callian, France
