Maison neuve à
Le Luc
(83340) Référence :
AM2344821_1
Prix du projet : Maison avec Terrain
prix 380 000 €
- 5 pièces
- 4 chambres
- Surface maison 95 m2
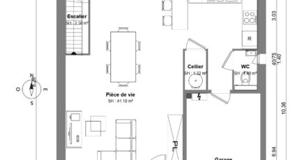
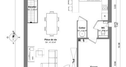
Les Maisons de Manon de Callian vous propose sur ce terrain diverses réalisations possible notamment notre nouveau modèle entièrement personnalisable de 95m² habitable avec un accès sud adapté au terrain. Il dispose de quatre chambres, une salle d'eaux, un cellier donnant sur un garage intégré, deux wc séparés ainsi qu'une belle pièce de vie lumineuse avec cuisine ouverte à partir de 380 000€TTC (Incluant: le terrain, les frais de notaire, les viabilités, devis terrassier estimatif, hors cuisine, hors peinture, terrasse en option). Vous disposerez de nombreuses prestations de qualités, carrelage grand format, WC suspendu, chauffage réversible, domotique...et d'un réel accompagnement tout au long du projet. Pour plus d'informations contactez votre conseiller commercial des Maisons de Manon de Callian Mr Maugras Alexandre au O679268866
Annonce proposée par un Agent Commercial Partenaire.
Mentions légales
Terrain proposé par un partenaire foncier selon disponibilités et autorisation de publicité au prix de 149 000 €. Hors droit d'enregistrement et frais de notaire. Maison proposée, avec un contrat de construction de maison individuelle, dans le cadre de la loi du 19/12/1990, au prix de 231 000 € (Hors branchements et raccordements, papiers peints, peintures, revêtement de sol dans les chambres, qui sont chiffrés dans les travaux qui restent à charge du client. Tarif modifiable sans préavis). Étiquette énergie : A. Différents modèles disponibles pour ce terrain. Assurances et garanties du constructeur comprises (RC professionnelle, décennale, dommage ouvrage).Agence Maisons de Manon de Callian (83440)
- Téléphone :
- 04 94 76 22 22
- Adressse :
- D 562
83440 Callian, France
