Maison neuve à
Le Thoronet
(83340) Référence :
LB2441801_2
Prix du projet : Maison avec Terrain
prix 429 000 €
- 4 pièces
- 3 chambres
- Surface maison 98 m2
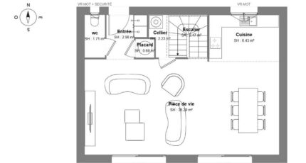
Située au Thoronet, à 10 minutes des axes autoroutiers, cette maison neuve à étage de 98 m², signée Maisons de Manon, sera construite dans un lieu calme au sein d'un grand terrain, très ensoleillé.
C'est dans ce village, l'un des plus authentiques du Var, que vous trouverez ce magnifique terrain de grande superficie pour un cadre de vie agréable, entre nature préservée et douceur provençale.
Votre projet à partir de 429 000 € hors frais de notaire pour une villa neuve de 98 m² avec 3 chambres. La maison offre une belle pièce de vie avec cuisine ouverte, un cellier et un wc au rez-de-chaussée. Une suite parentale, deux chambres et une salle de bain seront proposées à l'étage.
Faire appel aux Maisons de Manon, c'est s'assurer d'un savoir-faire reconnu, d'un accompagnement sur-mesure et de toutes les garanties du contrat de construction (CCMI). Pour un projet qui vous ressemble, contactez Lucile Berthe au 06 23 96 86 94, Agence de Brignoles.
Mentions légales
Terrain proposé par un partenaire foncier selon disponibilités et autorisation de publicité au prix de 226 000 €. Hors droit d'enregistrement et frais de notaire. Terrain + Maison proposés au prix de 429 000 € (Hors branchements et raccordements, papiers peints, peintures, revêtement de sol dans les chambres. Tarif modifiable sans préavis). Etiquette énergie : A. Différents modèles disponibles pour ce terrain. Assurances et garanties du constructeur (RC professionnelle, décennale, dommage ouvrage, garantie de remboursement de l'acompte, livraison à prix et délai convenu) : https://www.maisons-de-manon.fr/informations-legales/. HEXAOM Services est enregistré auprès de l'ORIAS en tant que Courtier en financement, Niveau 1, sous le numéro 14001345.Agence Maisons de Manon de Brignoles (83170)
- Téléphone :
- 04 94 37 50 39
- Adressse :
- Chemin du Beouvésé
83170 Brignoles, France
