Maison neuve à
Magalas (34480) Référence : AB2433998_5

Prix du projet : Maison avec Terrain

prix 212 500 €

  • 3 pièces
  • 2 chambres
  • Surface maison 70 m2

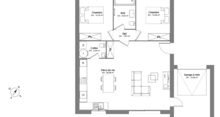
PROJET DE CONSTRUCTION - Maison T3 (70 m²) à Magalas
IDÉALEMENT SITUÉE - MAISON 3 PIÈCES
En vente : à 26 km de la côte méditerranéenne et à quelques kilomètres de Béziers, votre agence Maisons de Manon Béziers est ravie de vous proposer cette maison de 3 pièces de plain-pied de 70 m², idéalement située dans Magalas (34480). Elle comporte deux chambres, une cuisine, un cellier et une salle de bains + GARAGE.
Le terrain de la propriété est de 333 m².
(Carrelage inclus dans toutes les pièces / Raccordements inclus).
Cette maison se trouve dans un quartier convoité. Il y a l'École Élémentaire Capitaine Bonnet, le Collège les Arbourys et l'École Maternelle les Petits Grains à moins de 10 minutes à pied. Côté transports, on trouve la gare Magalas dans les environs. Les autoroutes A75 et A9 sont accessibles à moins de 16 km. Il y a un tennis, une boulangerie, deux commerces, une supérette et un bureau de poste à quelques minutes du logement.
Elle est proposée à l'achat pour 212 500 €.
Pour plus d'information contacter (Anthony BALLESTER : 06-27-21-51-55) Maisons de Manon Béziers pour échanger sur votre projet et réaliser une étude gratuite. (Plan personnalisable). Tous nos ouvrages sont réalisés sur-mesure en fonction de vos attentes et de nos échanges avec vous ainsi que dans le respect de la règlementation RE 2020. Ce projet comporte les garanties suivantes: Contrat de construction CCMI. Dommage/Ouvrage. RC Garantie décennale. Parfaite achèvement. Etude de sol G2. Prix et délais convenu. Garantie de livraison. Garantie financière Pour votre tranquillité nous nous occupons de toutes les formalités administratives.

Mentions légales

Terrain proposé par un partenaire foncier selon disponibilités et autorisation de publicité au prix de 85 000 €. Hors droit d'enregistrement et frais de notaire. Terrain + Maison proposés au prix de 212 500 € (Hors branchements et raccordements, papiers peints, peintures, revêtement de sol dans les chambres. Tarif modifiable sans préavis). Etiquette énergie : A. Différents modèles disponibles pour ce terrain. Assurances et garanties du constructeur (RC professionnelle, décennale, dommage ouvrage, garantie de remboursement de l'acompte, livraison à prix et délai convenu) : https://www.maisons-de-manon.fr/informations-legales/. HEXAOM Services est enregistré auprès de l'ORIAS en tant que Courtier en financement, Niveau 1, sous le numéro 14001345.

Contactez l'agence de Béziers

04 67 00 87 30

    * Champs obligatoires

    Vos informations sont traitées par HEXAOM et transmises à un conseiller commercial qui vous contactera afin de répondre à votre demande. Les plans et images présentés sur notre site sont la propriété d’HEXAOM et ne peuvent pas être reproduits sans son accord. Pour retrouver notre politique de protection des données personnelles et exercer vos droits conformément à la « loi informatique et liberté » cliquez-ici.