Maison neuve à
Marseillan (34340) Référence : AB2285684_8

Prix du projet : Maison avec Terrain

prix 445 000 €

  • 4 pièces
  • 3 chambres
  • Surface maison 95 m2

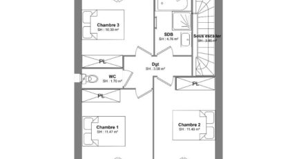
PROJET DE CONSTRUCTION - Maison F4 (95 m²) à Marseillan
IDÉALEMENT SITUÉE - MAISON 4 PIÈCES
À 5 km de la côte méditerranéenne et à quelques kilomètres de Béziers, laissez vous charmer par cette maison de 4 pièces de plain-pied de 95 m² et de 555 m² de terrain en vente, idéalement située dans Marseillan (34340).
Son intérieur se divise en trois chambres, une cuisine et une salle de bains + GARAGE.
(Carrelage inclus dans toutes les pièces / Raccordements inclus / Gainable compris).
Cette maison se trouve dans un quartier convoité. Il y a l'École Maternelle Marie Fayet et l'École Élémentaire d'Bardou A Maffre de Baugé à moins de 10 minutes à pied et une crèche. Niveau transports en commun, on trouve les gares Marseillan Plage, Agde et Vias à moins de 10 minutes en voiture. L'autoroute A9 est accessible à 9 km. Il y a des boulangeries, des commerces, un supermarché, deux poissonneries et un bureau de poste à proximité. Enfin, le marché Centre-Ville a lieu tous les mardis matin.
Elle est à vendre pour la somme de 445 000 €.
Pour plus d'information contacter (Anthony BALLESTER : 06-27-21-51-55) Maisons de Manon Béziers pour échanger sur votre projet et réaliser une étude gratuite. (Plan personnalisable). Tous nos ouvrages sont réalisés sur-mesure en fonction de vos attentes et de nos échanges avec vous ainsi que dans le respect de la règlementation RE 2020. Ce projet comporte les garanties suivantes: Contrat de construction CCMI. Dommage/Ouvrage. RC Garantie décennale. Parfaite achèvement. Etude de sol G2. Prix et délais convenu. Garantie de livraison. Garantie financière Pour votre tranquillité nous nous occupons de toutes les formalités administratives.

Mentions légales

Terrain proposé par un partenaire foncier selon disponibilités et autorisation de publicité au prix de 265 000 €. Hors droit d'enregistrement et frais de notaire. Maison proposée, avec un contrat de construction de maison individuelle, dans le cadre de la loi du 19/12/1990, au prix de 180 000 € (Hors branchements et raccordements, papiers peints, peintures, revêtement de sol dans les chambres, qui sont chiffrés dans les travaux qui restent à charge du client. Tarif modifiable sans préavis). Étiquette énergie : A. Différents modèles disponibles pour ce terrain. Assurances et garanties du constructeur comprises (RC professionnelle, décennale, dommage ouvrage).

Contactez l'agence de Béziers

04 67 00 87 30

    * Champs obligatoires

    Vos informations sont traitées par HEXAOM et transmises à un conseiller commercial qui vous contactera afin de répondre à votre demande. Les plans et images présentés sur notre site sont la propriété d’HEXAOM et ne peuvent pas être reproduits sans son accord. Pour retrouver notre politique de protection des données personnelles et exercer vos droits conformément à la « loi informatique et liberté » cliquez-ici.