Maison neuve à
Mougins (06250) Référence : PL2397775_1

Prix du projet : Maison avec Terrain

prix 695 000 €

  • 5 pièces
  • 4 chambres
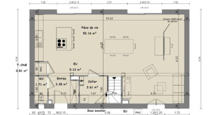
  • Surface maison 119 m2

Mougins : maison de 5 pièces (119 m²) à vendre
PROCHE CENTRE-VILLE - MAISON 5 PIÈCES NEUVE
En vente : située à 9 km de la côte méditerranéenne et à moins de 45 km du Monaco, nous vous proposons cette maison de 5 pièces de 119 m² proche du centre-ville de Mougins (06250). Elle propose quatre chambres, une cuisine et deux salles de bains.
Le terrain de cette maison est de 1 290 m².
C'est une maison de 2 niveaux. Elle est neuve.
L'École Maternelle Rebuffel et l'École Élémentaire Rebuffel sont implantées à moins de 10 minutes à pied, tout comme une structure d'accueil pour la petite enfance. Côté transports en commun, il y a 11 gares à moins de 10 minutes en voiture. L'autoroute A8 est accessible à 2 km. On trouve une bibliothèque, des commerces, une boulangerie, deux épiceries et un bureau de poste à quelques minutes. Enfin, le marché Place de l'église a lieu tous les dimanches matin.
Elle est proposée à l'achat pour 695 000 €.
Prenez contact avec Philippe LESBROS (tél : 06-63-28-70-67) pour tout renseignement sur cette maison, sur les modalités de vente et sur les démarches à suivre.

Annonce proposée par un Agent Commercial Partenaire.

Mentions légales

Terrain proposé par un partenaire foncier selon disponibilités et autorisation de publicité au prix de 439 000 €. Hors droit d'enregistrement et frais de notaire. Terrain + Maison proposés au prix de 695 000 € (Hors branchements et raccordements, papiers peints, peintures, revêtement de sol dans les chambres. Tarif modifiable sans préavis). Etiquette énergie : A. Différents modèles disponibles pour ce terrain. Assurances et garanties du constructeur (RC professionnelle, décennale, dommage ouvrage, garantie de remboursement de l'acompte, livraison à prix et délai convenu) : https://www.maisons-de-manon.fr/informations-legales/. HEXAOM Services est enregistré auprès de l'ORIAS en tant que Courtier en financement, Niveau 1, sous le numéro 14001345.

Contactez l'agence de Le Cannet

04 93 46 50 05

    * Champs obligatoires

    Vos informations sont traitées par HEXAOM et transmises à un conseiller commercial qui vous contactera afin de répondre à votre demande. Les plans et images présentés sur notre site sont la propriété d’HEXAOM et ne peuvent pas être reproduits sans son accord. Pour retrouver notre politique de protection des données personnelles et exercer vos droits conformément à la « loi informatique et liberté » cliquez-ici.