Maison neuve à
Murviel-lès-Béziers (34490) Référence : AB2419708_2

Prix du projet : Maison avec Terrain

prix 190 000 €

  • 3 pièces
  • 2 chambres
  • Surface maison 60 m2

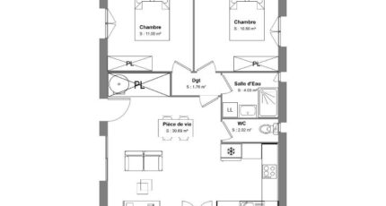
PROJET DE CONSTRUCTION - Maison F3 (60 m²) à Murviel-lès-Béziers
MAISON 3 PIÈCES - PROCHE DE BÉZIERS
À 27 km de la mer Méditerranée et à 14 km de Béziers, notre agence Maisons de Manon Béziers est heureuse de vous proposer en vente à Murviel-lès-Béziers (34490), cette maison de 3 pièces de plain-pied de 60 m² et de 336 m² de terrain.
Elle dispose de deux chambres, d'une cuisine et d'une salle de bains.
(Carrelage inclus dans toutes les pièces / Raccordements inclus).
Le Collège le Cèdre, l'École Élémentaire Jean Guy et l'École Maternelle Jean Guy sont implantés à moins de 10 minutes à pied. Côté transports en commun, on trouve la gare Magalas à moins de 10 minutes en voiture. Les autoroutes A75 et A9 sont accessibles à moins de 17 km. Il y a un tennis, trois commerces, deux boulangeries, un bureau de poste et une boucherie-charcuterie à proximité du logement.
Son prix de vente est de 190 000 €.
Pour plus d'information contacter Anthony BALLESTER : 06-27-21-51-55 Maisons de Manon Béziers pour échanger sur votre projet et réaliser une étude gratuite. (Plan personnalisable). Tous nos ouvrages sont réalisés sur-mesure en fonction de vos attentes et de nos échanges avec vous ainsi que dans le respect de la règlementation RE 2020. Ce projet comporte les garanties suivantes: Contrat de construction CCMI. Dommage/Ouvrage. RC Garantie décennale. Parfaite achèvement. Etude de sol G2. Prix et délais convenu. Garantie de livraison. Garantie financière Pour votre tranquillité nous nous occupons de toutes les formalités administratives.

Mentions légales

Terrain proposé par un partenaire foncier selon disponibilités et autorisation de publicité au prix de 80 000 €. Hors droit d'enregistrement et frais de notaire. Terrain + Maison proposés au prix de 190 000 € (Hors branchements et raccordements, papiers peints, peintures, revêtement de sol dans les chambres. Tarif modifiable sans préavis). Etiquette énergie : A. Différents modèles disponibles pour ce terrain. Assurances et garanties du constructeur (RC professionnelle, décennale, dommage ouvrage, garantie de remboursement de l'acompte, livraison à prix et délai convenu) : https://www.maisons-de-manon.fr/informations-legales/. HEXAOM Services est enregistré auprès de l'ORIAS en tant que Courtier en financement, Niveau 1, sous le numéro 14001345.

Contactez l'agence de Béziers

04 67 00 87 30

    * Champs obligatoires

    Vos informations sont traitées par HEXAOM et transmises à un conseiller commercial qui vous contactera afin de répondre à votre demande. Les plans et images présentés sur notre site sont la propriété d’HEXAOM et ne peuvent pas être reproduits sans son accord. Pour retrouver notre politique de protection des données personnelles et exercer vos droits conformément à la « loi informatique et liberté » cliquez-ici.