Maison neuve à
Olonzac (34210) Référence : AB2253272_4

Prix du projet : Maison avec Terrain

prix 197 000 €

  • 4 pièces
  • 3 chambres
  • Surface maison 81 m2

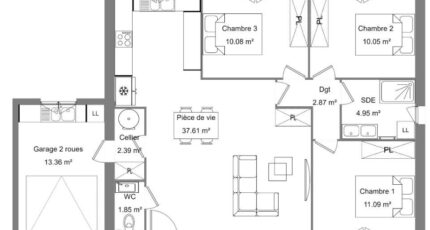
PROJET DE CONSTRUCTION - Maison de 4 pièces (81 m²) à Olonzac
IDÉALEMENT SITUÉE - MAISON 4 PIÈCES
À vendre à 46 km de la côte méditerranéenne et à quelques kilomètres de Narbonne, venez découvrir, idéalement située dans Olonzac (34210), cette maison de 4 pièces de plain-pied de 81 m².
Son intérieur propose trois chambres, une cuisine, un cellier et une salle de bains + GARAGE.
(Carrelage inclus dans toutes les pièces / Raccordements inclus).
Le terrain du bien est de 400 m².
Cette maison se situe dans un quartier prisé. Trois établissements scolaires sont implantés à moins de 10 minutes à pied,, parmi lesquels le Collège Antoine Faure et l'École Maternelle Henri Matisse, tout comme une structure d'accueil pour les tout-petits. Niveau transports en commun, on trouve la gare Lézignan-Corbières à moins de 10 minutes en voiture. L'autoroute A61 est accessible à 13 km. Il y a un tennis, quatre commerces, trois boulangeries, un supermarché, un bureau de poste et une épicerie dans les environs. Enfin, le marché Allée de Gaulle anime le quartier chaque mardi matin.
Elle est à vendre pour la somme de 197 000 €.
Pour plus d'information contacter (Anthony BALLESTER : 06-27-21-51-55) Maisons de Manon Béziers pour échanger sur votre projet et réaliser une étude gratuite. (Plan personnalisable). Tous nos ouvrages sont réalisés sur-mesure en fonction de vos attentes et de nos échanges avec vous ainsi que dans le respect de la règlementation RE 2020. Ce projet comporte les garanties suivantes: Contrat de construction CCMI. Dommage/Ouvrage. RC Garantie décennale. Parfaite achèvement. Etude de sol G2. Prix et délais convenu. Garantie de livraison. Garantie financière Pour votre tranquillité nous nous occupons de toutes les formalités administratives.

Mentions légales

Terrain proposé par un partenaire foncier selon disponibilités et autorisation de publicité au prix de 59 900 €. Hors droit d'enregistrement et frais de notaire. Maison proposée, avec un contrat de construction de maison individuelle, dans le cadre de la loi du 19/12/1990, au prix de 137 100 € (Hors branchements et raccordements, papiers peints, peintures, revêtement de sol dans les chambres, qui sont chiffrés dans les travaux qui restent à charge du client. Tarif modifiable sans préavis). Étiquette énergie : A. Différents modèles disponibles pour ce terrain. Assurances et garanties du constructeur comprises (RC professionnelle, décennale, dommage ouvrage).

Contactez l'agence de Béziers

04 67 00 87 30

    * Champs obligatoires

    Vos informations sont traitées par HEXAOM et transmises à un conseiller commercial qui vous contactera afin de répondre à votre demande. Les plans et images présentés sur notre site sont la propriété d’HEXAOM et ne peuvent pas être reproduits sans son accord. Pour retrouver notre politique de protection des données personnelles et exercer vos droits conformément à la « loi informatique et liberté » cliquez-ici.