Maison neuve à
Olonzac
(34210) Référence :
CDD2329125_2
Prix du projet : Maison avec Terrain
prix 163 491 €
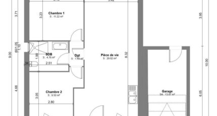
- 2 pièces
- 2 chambres
- Surface maison 50 m2
Olonzac.
Nous construisons votre villa RE 2020 sur cette parcelle de 420m² située en lotissement, proche de tous les services du village.
Olonzac est une commune très dynamique du Minervois offrant tous les commerces, un superbe marché hebdomadaire, crèche, école, collège, pharmacie, médecins etc...
Sa situation est idéale entre Narbonne (30kms), Carcassonne, et son aéroport à 40kms; et Lézignan-Corbières, son hôpital et son accès autoroute à seulement 12kms.
Vous pourrez également profiter de la baignade à 5 minutes, sur la base nautique du lac de Jouarres.
Contactez-nous au 04 68 32 61 05 pour discuter de votre projet.
Mentions légales
Terrain proposé par un partenaire foncier selon disponibilités et autorisation de publicité au prix de 59 900 €. Hors droit d'enregistrement et frais de notaire. Maison proposée, avec un contrat de construction de maison individuelle, dans le cadre de la loi du 19/12/1990, au prix de 103 591 € (Hors branchements et raccordements, papiers peints, peintures, revêtement de sol dans les chambres, qui sont chiffrés dans les travaux qui restent à charge du client. Tarif modifiable sans préavis). Étiquette énergie : A. Différents modèles disponibles pour ce terrain. Assurances et garanties du constructeur comprises (RC professionnelle, décennale, dommage ouvrage).Agence Maisons de Manon de Narbonne (11100)
- Téléphone :
- 04 68 32 61 05
- Adressse :
- 2 rue Guiraud Riquier
11100 Narbonne, France
