Maison neuve à
Pignans
(83790) Référence :
FI2422239_1
Prix du projet : Maison avec Terrain
prix 318 000 €
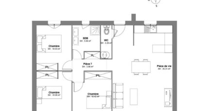
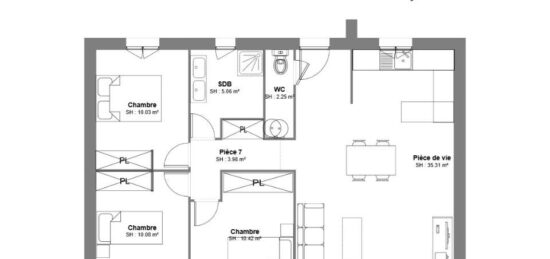
- 3 pièces
- 3 chambres
- Surface maison 77 m2
Pignans: Maison neuve à construire
PROCHE DE TOULON - MAISON 4 PIÈCES NEUVE
Votre agence Maisons de Manon Brignoles est ravie de vous proposer cette maison de 4 pièces de 77 m² à Pignans. Son intérieur offre 3 chambres (proposition de projet, celui-ci étant entierement personnalisable)
Les Maisons de Manon et son partenaire foncier vous proposent à la vente :
Ce projet de terrain + maison
Sur ce terrain, vous pouvez construire une maison de plain-pied ou étage selon vos envies. Construction conforme à la RE2020 aux dernières normes permettant une faible consommation énergétique, en hiver mais aussi en été.
Dans un petit lotissement et dans un cadre verdoyant, à proximité de Brignoles et de Toulon
Le prix de vente de ce projet est à partir de 318000€ hors frais de notaire, taxes et aménagements
N'hésitez pas à prendre contact avec Florence INGARGIOLA O61 627 5393 pour toute information sur la maison, sur les modalités de vente et les démarches à suivre.
Maisons de Manon Brignoles vous accompagne à toutes les étapes de votre projet.
Mentions légales
Terrain proposé par un partenaire foncier selon disponibilités et autorisation de publicité au prix de 163 000 €. Hors droit d'enregistrement et frais de notaire. Terrain + Maison proposés au prix de 318 000 € (Hors branchements et raccordements, papiers peints, peintures, revêtement de sol dans les chambres. Tarif modifiable sans préavis). Etiquette énergie : A. Différents modèles disponibles pour ce terrain. Assurances et garanties du constructeur (RC professionnelle, décennale, dommage ouvrage, garantie de remboursement de l'acompte, livraison à prix et délai convenu) : https://www.maisons-de-manon.fr/informations-legales/. HEXAOM Services est enregistré auprès de l'ORIAS en tant que Courtier en financement, Niveau 1, sous le numéro 14001345.Agence Maisons de Manon de Brignoles (83170)
- Téléphone :
- 04 94 37 50 39
- Adressse :
- Chemin du Beouvésé
83170 Brignoles, France
