Maison neuve à
Pinet
(34850) Référence :
TL2420474_2
Prix du projet : Maison avec Terrain
prix 279 900 €
- 5 pièces
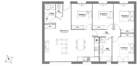
- 4 chambres
- Surface maison 98 m2
Maison T5 (98 m²) à vendre à Pinet
IDÉALEMENT SITUÉE - MAISON 5 PIÈCES NEUVE
À vendre à 10 km de la mer Méditerranée et à deux pas de Béziers, Maisons de Manon Gignac vous présente, idéalement située dans Pinet (34850), cette maison de 5 pièces de 98 m². Elle dispose de quatre chambres, d'une cuisine et d'une salle de bains.
Le terrain de cette maison est de 443 m².
C'est une maison de 2 niveaux. Elle est neuve.
Cette maison est située dans un quartier prisé. L'École Primaire Via Domitia se trouve à moins de 10 minutes à pied. Niveau transports, il y a la gare Marseillan Plage à moins de 10 minutes en voiture. Les autoroutes A75 et A9 sont accessibles à moins de 9 km. On trouve une bibliothèque, un tennis, une boulangerie, deux commerces et une épicerie à quelques minutes.
Son prix de vente est de 279 900 €.
N'hésitez pas à prendre contact avec Thierry LAURENT (06-20-80-85-53) pour plus de renseignements sur la maison, sur les modalités de vente et sur les démarches à suivre.
Mentions légales
Terrain proposé par un partenaire foncier selon disponibilités et autorisation de publicité au prix de 120 000 €. Hors droit d'enregistrement et frais de notaire. Terrain + Maison proposés au prix de 279 900 € (Hors branchements et raccordements, papiers peints, peintures, revêtement de sol dans les chambres. Tarif modifiable sans préavis). Etiquette énergie : A. Différents modèles disponibles pour ce terrain. Assurances et garanties du constructeur (RC professionnelle, décennale, dommage ouvrage, garantie de remboursement de l'acompte, livraison à prix et délai convenu) : https://www.maisons-de-manon.fr/informations-legales/. HEXAOM Services est enregistré auprès de l'ORIAS en tant que Courtier en financement, Niveau 1, sous le numéro 14001345.Agence Maisons de Manon de Gignac (34150)
- Téléphone :
- 04 67 60 27 78
- Adressse :
- Zone Cosmo
34150 Gignac, France
