Maison neuve à
Pourrières
(83910) Référence :
BE2433313_3
Prix du projet : Maison avec Terrain
prix 340 000 €
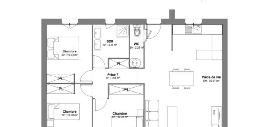
- 3 pièces
- 2 chambres
- Surface maison 60 m2
Votre maison à Pourrières : jolie villa neuve de 60m².
Idéalement situé nous vous proposons ce projet de plain-pied sur 500 m² de terrain.
Vous pouvez contacter Bérengère Eudier O6-46-31-4O-98 pour toute information sur ce bien.
Modulables selon vos envies, nos maisons sont confortables, fonctionnelles et harmonieuses.
Nous garantissons contractuellement nos prix et délais ainsi qu'une construction conforme aux dernières normes permettant une faible consommation énergétique.
Son prix de vente avec le terrain est de 340 000 €.
Les Maisons de Manon portent toutes la signature du Sud avec leurs rangs de génoises typiques, des jeux d'enduits travaillés et d'élégantes patines. Les matériaux durables sont sélectionnés avec soin afin de préserver l'environnement.
Maisons de Manon : Plus qu'une maison, un art de vivre !
Mentions légales
Terrain proposé par un partenaire foncier selon disponibilités et autorisation de publicité au prix de 204 000 €. Hors droit d'enregistrement et frais de notaire. Terrain + Maison proposés au prix de 340 000 € (Hors branchements et raccordements, papiers peints, peintures, revêtement de sol dans les chambres. Tarif modifiable sans préavis). Etiquette énergie : A. Différents modèles disponibles pour ce terrain. Assurances et garanties du constructeur (RC professionnelle, décennale, dommage ouvrage, garantie de remboursement de l'acompte, livraison à prix et délai convenu) : https://www.maisons-de-manon.fr/informations-legales/. HEXAOM Services est enregistré auprès de l'ORIAS en tant que Courtier en financement, Niveau 1, sous le numéro 14001345.Agence Maisons de Manon de Brignoles (83170)
- Téléphone :
- 04 94 37 50 39
- Adressse :
- Chemin du Beouvésé
83170 Brignoles, France
