Maison neuve à
Puisserguier
(34620) Référence :
CDD2399483_2
Prix du projet : Maison avec Terrain
prix 357 870 €
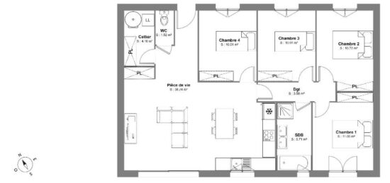
- 5 pièces
- 4 chambres
- Surface maison 130 m2
Puisserguier.
Nous construisons votre villa RE2020 sur cette parcelle de 603m² prête à la construction située dans un petit lotissement de 9 lots au coeur d'un environnement calme et résidentiel.
À seulement 16 kilomètres de la ville de Béziers, cette commune dispose de tous les commerces, services (restaurants, producteurs de vin, hébergements en gîtes, supermarchés...) et équipements de la vie quotidienne.
Profitez d'un environnement "campagne" avec les plages et l'aéroport de Béziers à seulement 30 minutes.
Contactez-nous au 04 68 32 61 05 pour discuter de votre projet.
Mentions légales
Terrain proposé par un partenaire foncier selon disponibilités et autorisation de publicité au prix de 110 000 €. Hors droit d'enregistrement et frais de notaire. Terrain + Maison proposés au prix de 357 870 € (Hors branchements et raccordements, papiers peints, peintures, revêtement de sol dans les chambres. Tarif modifiable sans préavis). Etiquette énergie : A. Différents modèles disponibles pour ce terrain. Assurances et garanties du constructeur (RC professionnelle, décennale, dommage ouvrage, garantie de remboursement de l'acompte, livraison à prix et délai convenu) : https://www.maisons-de-manon.fr/informations-legales/. HEXAOM Services est enregistré auprès de l'ORIAS en tant que Courtier en financement, Niveau 1, sous le numéro 14001345.Agence Maisons de Manon de Narbonne (11100)
- Téléphone :
- 04 68 32 61 05
- Adressse :
- 2 rue Guiraud Riquier
11100 Narbonne, France
