Maison neuve à
Quarante (34310) Référence : AB2288949_6

Prix du projet : Maison avec Terrain

prix 247 000 €

  • 5 pièces
  • 4 chambres
  • Surface maison 101 m2

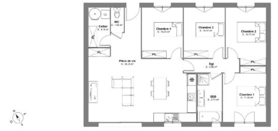
PROJET DE CONSTRUCTION - Quarante : maison de 5 pièces (101 m²)
PROCHE DE BÉZIERS - MAISON 5 PIÈCES
En vente : à 30 km de la côte méditerranéenne et à quelques kilomètres de Béziers, à Quarante (34310), venez découvrir cette maison de 5 pièces de plain-pied de 101 m². Conçue de plain-pied, elle inclut quatre chambres, une cuisine, un cellier, une salle de bains et un garage.
Le terrain de la propriété s'étend sur 558 m².
(Carrelage inclus dans toutes les pièces / Raccordements inclus / Gainable compris).
Le Collège Louis Cahuzac, l'École Élémentaire Jules Ferry et l'École Maternelle de l'Horte sont implantés à moins de 10 minutes à pied. On trouve un accès à l'autoroute A9 à 20 km. On trouve un tennis, deux boulangeries, une épicerie, un bureau de poste et trois boucheries-charcuteries à proximité.
Elle est proposée à l'achat pour 247 000 €.
Pour plus d'information contacter (Anthony BALLESTER : 06.27.21.51.55) Maisons de Manon Béziers pour échanger sur votre projet et réaliser une étude gratuite. (Plan personnalisable). Tous nos ouvrages sont réalisés sur-mesure en fonction de vos attentes et de nos échanges avec vous ainsi que dans le respect de la règlementation RE 2020. Ce projet comporte les garanties suivantes: Contrat de construction CCMI. Dommage/Ouvrage. RC Garantie décennale. Parfaite achèvement. Etude de sol G2. Prix et délais convenu. Garantie de livraison. Garantie financière Pour votre tranquillité nous nous occupons de toutes les formalités administratives.

Mentions légales

Terrain proposé par un partenaire foncier selon disponibilités et autorisation de publicité au prix de 79 900 €. Hors droit d'enregistrement et frais de notaire. Maison proposée, avec un contrat de construction de maison individuelle, dans le cadre de la loi du 19/12/1990, au prix de 167 100 € (Hors branchements et raccordements, papiers peints, peintures, revêtement de sol dans les chambres, qui sont chiffrés dans les travaux qui restent à charge du client. Tarif modifiable sans préavis). Étiquette énergie : A. Différents modèles disponibles pour ce terrain. Assurances et garanties du constructeur comprises (RC professionnelle, décennale, dommage ouvrage).

Contactez l'agence de Béziers

04 67 00 87 30

    * Champs obligatoires

    Vos informations sont traitées par HEXAOM et transmises à un conseiller commercial qui vous contactera afin de répondre à votre demande. Les plans et images présentés sur notre site sont la propriété d’HEXAOM et ne peuvent pas être reproduits sans son accord. Pour retrouver notre politique de protection des données personnelles et exercer vos droits conformément à la « loi informatique et liberté » cliquez-ici.