Maison neuve à
Roquebrune-sur-Argens
(83520) Référence :
AM2435542_2
Prix du projet : Maison avec Terrain
prix 385 000 €
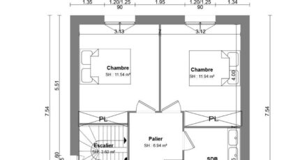
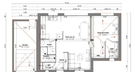
- 4 pièces
- 3 chambres
- Surface maison 94 m2
Les Maisons de Manon de Callian vous propose sur ce terrain une réalisation sur mesures entièrement personnalisable de 94m², très fonctionnelle, disposant de nombreuses prestations de qualité. Cette villa dispose de trois chambres dont une suite parentale avec salle d'eaux au rez de chaussée, une salle de bain, deux WC séparé, un cellier attenant à une cuisine ouverte donnant sur un bel espace de vie lumineux orienté sud ainsi qu'un garage accolé à partir de 385 000€TTC (Terrain inclus, hors frais de notaire, hors frais annexes, hors cuisine et peinture intérieur, garage et terrasse en option). Pour plus d'information contactez votre conseiller commercial des Maisons de Manon Mr Maugras Alexandre au O679268866
Annonce proposée par un Agent Commercial Partenaire.
Mentions légales
Terrain proposé par un partenaire foncier selon disponibilités et autorisation de publicité au prix de 180 000 €. Hors droit d'enregistrement et frais de notaire. Terrain + Maison proposés au prix de 385 000 € (Hors branchements et raccordements, papiers peints, peintures, revêtement de sol dans les chambres. Tarif modifiable sans préavis). Etiquette énergie : A. Différents modèles disponibles pour ce terrain. Assurances et garanties du constructeur (RC professionnelle, décennale, dommage ouvrage, garantie de remboursement de l'acompte, livraison à prix et délai convenu) : https://www.maisons-de-manon.fr/informations-legales/. HEXAOM Services est enregistré auprès de l'ORIAS en tant que Courtier en financement, Niveau 1, sous le numéro 14001345.Agence Maisons de Manon de Callian (83440)
- Téléphone :
- 04 94 76 22 22
- Adressse :
- D 562
83440 Callian, France
