Maison neuve à
Saint-Maximin-la-Sainte-Baume
(83470) Référence :
BE2421984_3
Prix du projet : Maison avec Terrain
prix 360 000 €
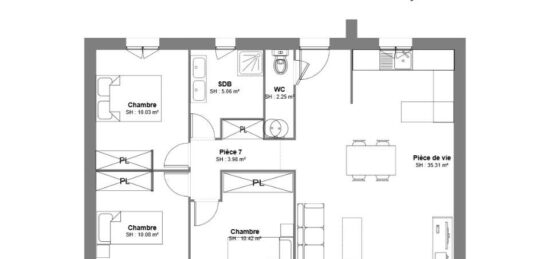
- 3 pièces
- 2 chambres
- Surface maison 85 m2
Votre maison contemporaine de 3 pièces à Saint Maximin
belle villa neuve de 85m² avec garage accolé.
Idéalement située dans un cadre verdoyant proche centre.
Modulable selon vos envies, nos maisons sont confortables, fonctionnelles et harmonieuses.
Nous garantissons contractuellement nos prix et délais ainsi qu'une construction conforme aux dernières normes permettant une faible consommation énergétique.
Son prix de vente avec le terrain est de 360 000 €.
Contactez Bérengère Eudier O6-46-31-4O-98 pour toute information sur ce bien.
Les Maisons de Manon portent toutes la signature du Sud avec leurs rangs de génoises typiques, des jeux d'enduits travaillés et d'élégantes patines. Les matériaux durables sont sélectionnés avec soin afin de préserver l'environnement.
Maisons de Manon : Plus qu'une maison, un art de vivre !
Mentions légales
Terrain proposé par un partenaire foncier selon disponibilités et autorisation de publicité au prix de 175 000 €. Hors droit d'enregistrement et frais de notaire. Terrain + Maison proposés au prix de 360 000 € (Hors branchements et raccordements, papiers peints, peintures, revêtement de sol dans les chambres. Tarif modifiable sans préavis). Etiquette énergie : A. Différents modèles disponibles pour ce terrain. Assurances et garanties du constructeur (RC professionnelle, décennale, dommage ouvrage, garantie de remboursement de l'acompte, livraison à prix et délai convenu) : https://www.maisons-de-manon.fr/informations-legales/. HEXAOM Services est enregistré auprès de l'ORIAS en tant que Courtier en financement, Niveau 1, sous le numéro 14001345.Agence Maisons de Manon de Brignoles (83170)
- Téléphone :
- 04 94 37 50 39
- Adressse :
- Chemin du Beouvésé
83170 Brignoles, France
