Maison neuve à
Saint-Maximin-la-Sainte-Baume
(83470) Référence :
FI2428994_2
Prix du projet : Maison avec Terrain
prix 345 000 €
- 3 pièces
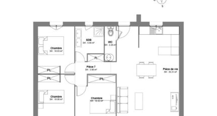
- 3 chambres
- Surface maison 77 m2
Projet de construction à Saint Maximin la sainte Baume, à 20 min de Aix, d'Aubagne et de Brignoles
Venez construire votre maison, le modèle proposé est entièrement personnalisable, il comporte 3 chambres sur un terrain de 600m2 pour une superficie de 77m2 habitable
Il y a des établissements scolaires du primaire et du secondaire à moins de 10 minutes à pied. Il y a un accès à l'autoroute A8 à 2 km. On trouve une bibliothèque, un bassin de natation, un bowling, des boulangeries, des commerces, quatre supermarchés, trois épiceries et des boucheries-charcuteries dans les environs.
Contactez Florence INGARGIOLA au O616275393 pour une étude personnalisée de votre projet à partir de 345000 euros hors frais de notaire, taxes et aménagements. Maisons de Manon Brignoles vous accompagne à toutes les étapes de votre projet.
Mentions légales
Terrain proposé par un partenaire foncier selon disponibilités et autorisation de publicité au prix de 207 000 €. Hors droit d'enregistrement et frais de notaire. Terrain + Maison proposés au prix de 345 000 € (Hors branchements et raccordements, papiers peints, peintures, revêtement de sol dans les chambres. Tarif modifiable sans préavis). Etiquette énergie : A. Différents modèles disponibles pour ce terrain. Assurances et garanties du constructeur (RC professionnelle, décennale, dommage ouvrage, garantie de remboursement de l'acompte, livraison à prix et délai convenu) : https://www.maisons-de-manon.fr/informations-legales/. HEXAOM Services est enregistré auprès de l'ORIAS en tant que Courtier en financement, Niveau 1, sous le numéro 14001345.Agence Maisons de Manon de Brignoles (83170)
- Téléphone :
- 04 94 37 50 39
- Adressse :
- Chemin du Beouvésé
83170 Brignoles, France
