Maison neuve à
Saint-Thibéry (34630) Référence : LR2408260_2

Prix du projet : Maison avec Terrain

prix 270 000 €

  • 5 pièces
  • 4 chambres
  • Surface maison 98 m2

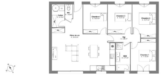
Maison de 5 pièces (98 m²) à vendre à Saint-Thibéry
IDÉALEMENT SITUÉE - MAISON 5 PIÈCES NEUVE
À 11 km de la mer Méditerranée et à 14 km de Béziers, découvrez cette maison de 5 pièces de 98 m² et de 370 m² de terrain idéalement située dans Saint-Thibéry (34630).
C'est une maison de 2 niveaux. Elle compte quatre chambres, une cuisine et une salle de bains. La maison est neuve.
Cette maison est située dans un secteur prisé. Des écoles de tous types (de la maternelle au lycée) se trouvent à moins de 10 minutes en voiture, tout comme quatre structures d'accueil pour les enfants en bas âge à moins de 10 minutes à pied. Côté transports, il y a deux gares (Vias et Agde) à moins de 10 minutes en voiture. Les autoroutes A9 et A75 sont accessibles à moins de 6 km. On trouve des tennis, quatre bassins de natation, des bibliothèques, des boulangeries, des commerces, des supermarchés, des bureaux de poste et des poissonneries à quelques minutes du bien. Enfin, 3 marchés animent les environs.
Elle est proposée à l'achat pour 270 000 €.
Prenez contact avec notre agence (RENARD Léo : 06-13-67-09-81) pour plus d'informations sur la maison ou sur les démarches à suivre. Maisons de Manon Béziers vous accompagne dans tous vos projets immobiliers et à toutes les étapes de votre projet.

Mentions légales

Terrain proposé par un partenaire foncier selon disponibilités et autorisation de publicité au prix de 83 000 €. Hors droit d'enregistrement et frais de notaire. Terrain + Maison proposés au prix de 270 000 € (Hors branchements et raccordements, papiers peints, peintures, revêtement de sol dans les chambres. Tarif modifiable sans préavis). Etiquette énergie : A. Différents modèles disponibles pour ce terrain. Assurances et garanties du constructeur (RC professionnelle, décennale, dommage ouvrage, garantie de remboursement de l'acompte, livraison à prix et délai convenu) : https://www.maisons-de-manon.fr/informations-legales/. HEXAOM Services est enregistré auprès de l'ORIAS en tant que Courtier en financement, Niveau 1, sous le numéro 14001345.

Contactez l'agence de Béziers

04 67 00 87 30

    * Champs obligatoires

    Vos informations sont traitées par HEXAOM et transmises à un conseiller commercial qui vous contactera afin de répondre à votre demande. Les plans et images présentés sur notre site sont la propriété d’HEXAOM et ne peuvent pas être reproduits sans son accord. Pour retrouver notre politique de protection des données personnelles et exercer vos droits conformément à la « loi informatique et liberté » cliquez-ici.