Maison neuve à
Salernes
(83690) Référence :
LB2399978_1
Prix du projet : Maison avec Terrain
prix 329 000 €
- 4 pièces
- 3 chambres
- Surface maison 98 m2
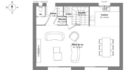
À seulement quelques kilomètres de Draguignan, idéalement située sur la commune de Salernes (83690), découvrez cette maison neuve à étage, développant 98 m² habitables sur un terrain de 1 037 m².
La maison se compose d'une belle pièce de vie avec cuisine ouverte, de trois chambres, ainsi que d'une salle de bains. Le projet est implanté dans un quartier agréable, à moins de 10 minutes à pied des commerces, offrant un cadre de vie pratique et confortable.
Ce projet à partir de 329 000 €, hors frais de notaire, hors cuisine et peintures.
Pour toute information complémentaire sur ce projet, les démarches à suivre ou les modalités de vente, contactez Lucile BERTHE au 06 23 96 86 94.
Maisons de Manon, Agence de Brignoles, pour un projet qui vous ressemble.
Mentions légales
Terrain proposé par un partenaire foncier selon disponibilités et autorisation de publicité au prix de 125 000 €. Hors droit d'enregistrement et frais de notaire. Terrain + Maison proposés au prix de 329 000 € (Hors branchements et raccordements, papiers peints, peintures, revêtement de sol dans les chambres. Tarif modifiable sans préavis). Etiquette énergie : A. Différents modèles disponibles pour ce terrain. Assurances et garanties du constructeur (RC professionnelle, décennale, dommage ouvrage, garantie de remboursement de l'acompte, livraison à prix et délai convenu) : https://www.maisons-de-manon.fr/informations-legales/. HEXAOM Services est enregistré auprès de l'ORIAS en tant que Courtier en financement, Niveau 1, sous le numéro 14001345.Agence Maisons de Manon de Brignoles (83170)
- Téléphone :
- 04 94 37 50 39
- Adressse :
- Chemin du Beouvésé
83170 Brignoles, France
