Maison neuve à
Sisteron (04200) Référence : GFB2398094_1

Prix du projet : Maison avec Terrain

prix 460 000 €

  • 6 pièces
  • 5 chambres
  • Surface maison 120 m2

Maisons de Manon - Ligne Bois réalise pour vous un projet de construction de maison individuelle à ossature bois, à votre image, sur une parcelle de 1 061 m² située à SISTERON, dans le quartier recherché de la Haute Chaumiane, au sein d'un environnement résidentiel, calme et agréable, avec vue dégagée sur la Citadelle.
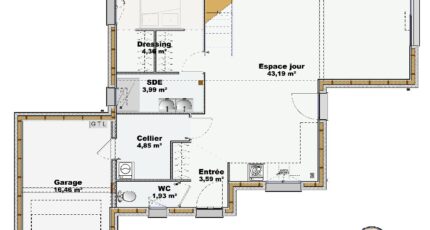
Cette maison à étage partiel développe environ 121 m² habitables et offre une organisation intérieure pensée pour le confort et la vie de famille.
Au rez-de-chaussée, vous profitez d'une entrée accueillante, d'un bel espace de vie lumineux avec cuisine ouverte sur le salon/salle à manger, largement ouvert sur les extérieurs, d'un cellier, d'un WC indépendant, ainsi que d'une suite parentale avec salle d'eau et dressing, bénéficiant d'un accès direct à la terrasse et au jardin.
À l'étage, l'espace nuit se compose de trois chambres, d'une salle de bain et d'un WC indépendant, offrant à chacun son espace et son intimité.
L'architecture du modèle allie lignes contemporaines et esprit moderne, avec une maison conçue pour s'ouvrir naturellement vers le jardin et les extérieurs.
Ce projet est réalisé en ossature bois, un mode constructif offrant de nombreux avantages :
un délai de construction réduit, jusqu'à 5 mois plus rapide qu'une construction traditionnelle,
un excellent confort thermique et acoustique, été comme hiver,
un chantier propre et calme, grâce à la fabrication des murs en atelier hors site,
un impact environnemental réduit, avec une empreinte carbone nettement inférieure au mode constructif traditionnel.
Prestations et équipements de qualité, adaptables selon vos besoins : toiture quatre pans, menuiseries anthracite avec volets roulants centralisés, domotique, carrelage grands formats, WC suspendus, cloisons techniques, alarme, etc.
Construction conforme à la réglementation environnementale RE 2020.
Projet personnalisable selon vos attentes et votre budget.
📞 Contactez Gauvain Faure-Brac au 06 09 98 40 18, votre référent maison os

Mentions légales

Terrain proposé par un partenaire foncier selon disponibilités et autorisation de publicité au prix de 115 000 €. Hors droit d'enregistrement et frais de notaire. Terrain + Maison proposés au prix de 460 000 € (Hors branchements et raccordements, papiers peints, peintures, revêtement de sol dans les chambres. Tarif modifiable sans préavis). Etiquette énergie : A. Différents modèles disponibles pour ce terrain. Assurances et garanties du constructeur (RC professionnelle, décennale, dommage ouvrage, garantie de remboursement de l'acompte, livraison à prix et délai convenu) : https://www.maisons-de-manon.fr/informations-legales/. HEXAOM Services est enregistré auprès de l'ORIAS en tant que Courtier en financement, Niveau 1, sous le numéro 14001345.

Contactez l'agence de Manosque

04 92 72 29 79

    * Champs obligatoires

    Vos informations sont traitées par HEXAOM et transmises à un conseiller commercial qui vous contactera afin de répondre à votre demande. Les plans et images présentés sur notre site sont la propriété d’HEXAOM et ne peuvent pas être reproduits sans son accord. Pour retrouver notre politique de protection des données personnelles et exercer vos droits conformément à la « loi informatique et liberté » cliquez-ici.