Maison neuve à
Tallard (05130) Référence : GFB2399223_1

Prix du projet : Maison avec Terrain

prix 278 000 €

  • 4 pièces
  • 3 chambres
  • Surface maison 75 m2

Maisons de Manon - Ligne Bois réalise pour vous un projet de construction de maison individuelle à ossature bois, à votre image, sur une parcelle de 360 m² située à proximité immédiate de Tallard, au sein d'un lotissement intimiste de 6 lots, dans un environnement campagne, calme et agréable, offrant tranquillité et qualité de vie à seulement 5 minutes des commodités.

Le modèle ORIGIN 75 est une maison de plain-pied développant environ 75 m² habitables, au style sobre et contemporain, pensée pour offrir un cadre de vie fonctionnel, lumineux et parfaitement adapté à une famille ou à un premier projet de construction.
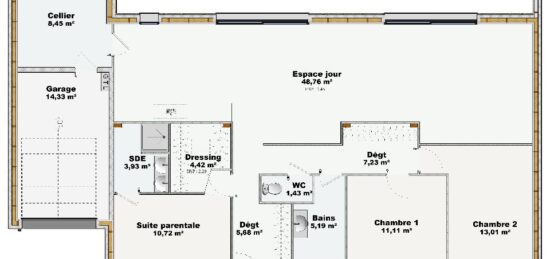
La maison s'organise autour d'un espace de vie central d'environ 31,5 m², avec cuisine ouverte sur le salon/salle à manger, favorisant la convivialité et une belle ouverture vers les extérieurs.
L'espace nuit se compose de trois chambres, d'environ 10 m² chacune, offrant des surfaces équilibrées et faciles à aménager.
Un dégagement central dessert les chambres, une salle de bains, un WC indépendant ainsi qu'un cellier fonctionnel, idéal pour le rangement et les équipements techniques.
L'architecture du modèle ORIGIN 75 se distingue par des volumes simples et harmonieux, une toiture en tuiles et des lignes épurées, permettant une intégration naturelle aussi bien en secteur diffus qu'en lotissement résidentiel.
Ce projet est réalisé en ossature bois, un mode constructif aux avantages majeurs :
une construction jusqu'à 5 mois plus rapide qu'une maison traditionnelle,
un excellent confort thermique et acoustique, été comme hiver,
un chantier propre et calme, grâce à la préfabrication des murs en atelier hors site,
un impact environnemental fortement réduit, avec une empreinte carbone nettement inférieure à celle d'une construction traditionnelle.
Prestations et équipements de qualité, adaptables selon vos besoins : menuiseries avec volets roulants, carrelage grands formats, cloisons techniques, équipements sanitaires complets, domotique possible, etc.
C

Mentions légales

Terrain proposé par un partenaire foncier selon disponibilités et autorisation de publicité au prix de 90 000 €. Hors droit d'enregistrement et frais de notaire. Terrain + Maison proposés au prix de 278 000 € (Hors branchements et raccordements, papiers peints, peintures, revêtement de sol dans les chambres. Tarif modifiable sans préavis). Etiquette énergie : A. Différents modèles disponibles pour ce terrain. Assurances et garanties du constructeur (RC professionnelle, décennale, dommage ouvrage, garantie de remboursement de l'acompte, livraison à prix et délai convenu) : https://www.maisons-de-manon.fr/informations-legales/. HEXAOM Services est enregistré auprès de l'ORIAS en tant que Courtier en financement, Niveau 1, sous le numéro 14001345.

Contactez l'agence de Manosque

04 92 72 29 79

    * Champs obligatoires

    Vos informations sont traitées par HEXAOM et transmises à un conseiller commercial qui vous contactera afin de répondre à votre demande. Les plans et images présentés sur notre site sont la propriété d’HEXAOM et ne peuvent pas être reproduits sans son accord. Pour retrouver notre politique de protection des données personnelles et exercer vos droits conformément à la « loi informatique et liberté » cliquez-ici.