Maison neuve à
Trets
(13530) Référence :
FI2409561_2
Prix du projet : Maison avec Terrain
prix 339 000 €
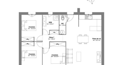
- 3 pièces
- 3 chambres
- Surface maison 77 m2
Projet à Trets - à 20 min de Marseille et de Saint Maximin - Centre-ville à pied
Découvrez ce projet de construction Maison + Terrain idéalement situé, à proximité immédiate du centre-ville accessible à pied, dans un environnement calme et recherché.
Le projet est proposé sur une parcelle de 500 m², avec une emprise au sol de 30 % et la possibilité de construction en R+1.
Maison proposée : 77 m² - Toiture 4 pentes -
Maison fonctionnelle et bien pensée, idéale pour un premier achat, un couple ou un investissement.
La toiture 4 pentes apporte un style traditionnel et une excellente intégration dans l'environnement existant.
Les plans présentés sont une idée d'aménagement et restent entièrement personnalisables (agencement intérieur, prestations, finitions).
Atout du terrain :
Possibilité d'étudier un projet de 2 maisons en copropriété, sous réserve des règles d'urbanisme.
Contactez Florence INGARGIOLA au O616275393 pour une étude personnalisée de votre projet à partir de 339000 euros hors frais de notaire, taxes et aménagements. Maisons de Manon Brignoles vous accompagne à toutes les étapes de votre projet.
Mentions légales
Terrain proposé par un partenaire foncier selon disponibilités et autorisation de publicité au prix de 189 000 €. Hors droit d'enregistrement et frais de notaire. Terrain + Maison proposés au prix de 339 000 € (Hors branchements et raccordements, papiers peints, peintures, revêtement de sol dans les chambres. Tarif modifiable sans préavis). Etiquette énergie : A. Différents modèles disponibles pour ce terrain. Assurances et garanties du constructeur (RC professionnelle, décennale, dommage ouvrage, garantie de remboursement de l'acompte, livraison à prix et délai convenu) : https://www.maisons-de-manon.fr/informations-legales/. HEXAOM Services est enregistré auprès de l'ORIAS en tant que Courtier en financement, Niveau 1, sous le numéro 14001345.Agence Maisons de Manon de Brignoles (83170)
- Téléphone :
- 04 94 37 50 39
- Adressse :
- Chemin du Beouvésé
83170 Brignoles, France
