Maison neuve à
Vinça
(66320) Référence :
AP2319469_9
Prix du projet : Maison avec Terrain
prix 312 536 €
- 4 pièces
- 3 chambres
- Surface maison 94 m2
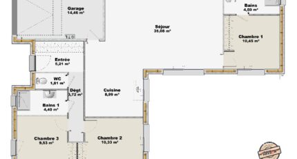
MAISON OSSATURE BOIS 4 PIÈCES NEUVE
Découvrez cette maison en L de 4 pièces de plain-pied de 94 m² et de 500 m² de terrain. Elle est composée de trois chambres dont une suite parentale, d'une pièce de vie avec coin cuisine, d'une salle de bain, d'un WC et d'un garage.
Une maison en ossature bois c'est :
- Isolant thermique naturel 20 fois meilleure que le béton.
- Pas de contrainte d'entretien.
- 6,5 fois plus léger que le béton.
- Des murs en bois moins épais que ceux en béton ou en brique, permettant de gagner jusqu'à 15% de surface habitable.
- Ecologique car très faible empreinte carbone qui permet de diminuer les gaz à effets de serre.
Elle est proposée à l'achat pour 312 536 €.
Contactez notre agence (Amélie POC : 04-68-37-48-24) pour tout renseignement sur la maison ou sur les modalités de vente. Concrétisez vos projets immobiliers avec Maisons de Manon Perpignan.
Mentions légales
Terrain proposé par un partenaire foncier selon disponibilités et autorisation de publicité au prix de 89 900 €. Hors droit d'enregistrement et frais de notaire. Maison proposée, avec un contrat de construction de maison individuelle, dans le cadre de la loi du 19/12/1990, au prix de 222 636 € (Hors branchements et raccordements, papiers peints, peintures, revêtement de sol dans les chambres, qui sont chiffrés dans les travaux qui restent à charge du client. Tarif modifiable sans préavis). Étiquette énergie : A. Différents modèles disponibles pour ce terrain. Assurances et garanties du constructeur comprises (RC professionnelle, décennale, dommage ouvrage).Agence Maisons de Manon de Perpignan (66000)
- Téléphone :
- 04 68 37 48 24
- Adressse :
- Lotissement Le Bois des Pins
66000 Perpignan, France
