Epure 94 GI Sud

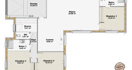
Plan maison 4 pièces 3 chambres Surface maison 94 m2

Épure 94 : le charme méditerranéen et la lumière naturelle
Découvrez l'Épure 94, une maison à ossature bois au plan en L unique, conçue pour maximiser l'espace et la lumière naturelle, un atout précieux sous le soleil du bord de mer ou du sud de la France. Avec ses 94 m² habitables, cette demeure est une invitation à la douceur de vivre méridionale.
L'agencement en L permet un vaste séjour de 35,08 m² et une cuisine de 8,99 m², formant un coeur de vie spacieux et lumineux, idéal pour les repas en famille ou les soirées entre amis prolongées sur une terrasse ensoleillée. La maison offre trois chambres confortables (10,45 m², 10,33 m², 9,45 m²), parfaites pour accueillir la famille et les amis. Vous apprécierez également les deux salles de bains (4,50 m² et 4,32 m²), un WC (1,76 m²), un dégagement (3,93 m²) et une entrée accueillante de 5,21 m². Un garage de 14,46 m² complète l'ensemble, idéal pour stationner un véhicule ou ranger du matériel de plage ou de jardinage.
La construction en bois de Épure 94 est un choix judicieux pour les régions du sud. Elle offre une excellente isolation thermique et phonique, garantissant une fraîcheur agréable pendant les chaudes journées d'été et une atmosphère sereine, loin de l'agitation extérieure. Cette performance se traduit par des économies d'énergie substantielles. Le bois, matériau renouvelable et écologique, réduit l'empreinte carbone de votre habitat, s'inscrivant parfaitement dans une démarche respectueuse de l'environnement. Sa légèreté minimise l'impact sur les fondations, et la rapidité de mise en oeuvre accélère les délais de chantier, vous permettant de profiter plus vite de votre nouveau cadre de vie. Enfin, les propriétés respirantes du bois créent un environnement intérieur sain, un véritable cocon de bien-être sous le soleil du sud.

Construire ce modèle ?

    * Champs obligatoires

    Vos informations sont traitées par HEXAOM et transmises à un conseiller commercial qui vous contactera afin de répondre à votre demande. Les plans et images présentés sur notre site sont la propriété d’HEXAOM et ne peuvent pas être reproduits sans son accord. Pour retrouver notre politique de protection des données personnelles et exercer vos droits conformément à la « loi informatique et liberté » cliquez-ici.